阳光城·檀府(肇庆)阳光城·檀府_肇庆_阳光城·檀府欢迎您丨2023楼盘详情
扫描到手机,新闻随时看
扫一扫,用手机看文章
更加方便分享给朋友
阳光城·檀府售楼处电话400-6398-010有多少栋,几梯几户,小区有多少户人家,容积率,总高有多少层,交楼时间,户型有那些,离地铁近吗,是带什么学校,物业费是多少,精装修吗,停车位够吗?停车位有多少个?售楼处电话,在那个位置,周边有什么规划,营销中心在那里?什么时候开盘?多少钱一平,周边配套,楼盘详情,值得买吗,潜力升值如何,升值空间大不大,地址,周边有什么规划,周边商业配套,最新优惠情况
肇庆【阳光城·檀府】楼盘优惠,预约看房
营销中心热线:400-6398-010
项目基础信息
在曲江新区管委会的官网尚公布的檀府建设工程规划公示! 广受关注的曲江豪宅阳光城·檀府项目,其工程工程规划公示近期在曲江管委会官网上公示,在此之前公示的还有其高端商业大唐不夜城·阳光荟项目,至此一个完整的豪宅项目呈现在世人面前。
公示中显示,阳光城·檀府(备案名)共规划了1-7栋楼,其中3-7#楼为8-12F的多层住宅,1-2#为8-11F的住宅公寓。
在此次变更公示中,所有住宅外立面材质、线脚、细部等进行了提升优化。
项目最新鸟瞰图

其中2#楼标准层层高由3.2米调整为3.4米 ,调整后西单元高度由36米调整为34.8米,楼层由11层调整为10层;东单元高度由26.4米调整为28.0米,层数不变。
另外,住宅由每单元两户调整为每单元一户,项目总户数由228户调整为210户。

有需要可以联系置 业 顾问!
作为曲江最神秘的高端住宅项目之一檀府,从2018年5月就开始发声、预热,其项目展厅就位于旁边的西安威斯汀大酒店,但因地块的种种原因一直没有入市。
阳光城檀府项目产品均为8层-12层大平层住宅,共计6栋337套房源,均为曲江核心大平层豪宅产品。

项目位置在曲江慈恩西路以东,雁塔南路以西,南临曲江银泰城,北临陕西大剧院,距离大雁塔800米,和去年四月公示的内容相比,建筑做了部分调整,容积率和绿化率都维持不变。

主要技术指标:
规划总建筑面积:121488.68平方米
其中地上建筑面积:74024.99平方米(其中住宅70101平方米、商业2188.93平方米、社区办公和活动用房301.07平方米、社区卫生服务站150.62平方米、公厕50.23平方米、老年日常照料中心751.27平方米、惠民设施150.44平方米、变电站148.91平方米、物业用房182.60平方米
地下建筑面积:47463. 69平方米(物业用房182. 60平方米)
建筑密度:30.2%
容积率:2.673
绿化率%:35%
建筑层数(层):1#住宅楼壹幢,地下二层,地上十一层(一层及二层为商业及配套用房),裙房(商业及配套用房)地上一层;2#住宅楼壹幢地下二层,地上八〜十一层(一层为商业及配套用房),裙房(商业及配套用房)地上一层;新建剪力墙结构;3#住宅楼壹幢,地下二层,地上八〜十二层;新建剪力墙结构4#住宅壹幢,地下二层,地上八〜十二层;新建剪力墙结构5#、6#、7#住宅楼叁幢,均为地下二层,地上十一层;新建框架结构地下一〜二层停车库及设备用房一座;新建框架结构地下一层停车库及设备用房一座(建筑面积32 2 7. 44肝位于地下二层,与“大唐不夜城·阳光荟”项目地下二层停车库联通)。
停车位:应设停车位822个(含新能源充电停车位785个、出租停车位6个、访客停车位19个),其中地面停车位42个,地下车库局部设机械停车位244个。
工程概况:
建筑单位:陕西瑞朗置业有限公司
设计单位:成都基准方中建筑设计有限公司



商业部分( 大唐不夜城·阳光荟项目):
除此之外还有商业部分大唐不夜城·阳光荟项目规划:
从项目规划图上看,两个项目处在同一地块,地下车库互通。

(项目位置卫星图)
项目位于曲江一期大唐不夜城的核心位置,距雁塔南广场750米,曲江银泰城南侧,这样的区位的房子就代表了它的价值!
目前总高8层和12层的三号楼已经建成,估计距离面市不远了,至于价位,我们可以大胆猜测一下!
2
关于开发商
对于阳光城·檀府项目 ( 备案名 ) 熟悉的人知道,该项目自2021年底由泰发祥地产从阳光城手中低调的收购得来,随后项目名称变更为泰发祥·檀府 (推广名 ) 。

陕西泰发祥集团始创于1983年,产业涉及能源、地产、商业、投资四大板块,分布于榆林、西安、上海等地,总部位于陕西省西安市。

作为集团四大板块的重要组成部分,泰发祥地产成立于2010年,累计开发面积近300万㎡,开发项目包含榆林市的高新华府、泰祥家苑、高新御府、泰发祥·中梁首府、高新悦府、公园华府、高新融府、云筑、云锦等住宅项目,900亩“发祥地新商业智慧城”;西安航天基地100亩低密度现代商务建筑群“半山企业天地(备案名:泰航航天丝路科学园)”;大雁塔旁、大唐不夜城中的顶豪住宅“泰发祥·檀府”。
3
户型赏析
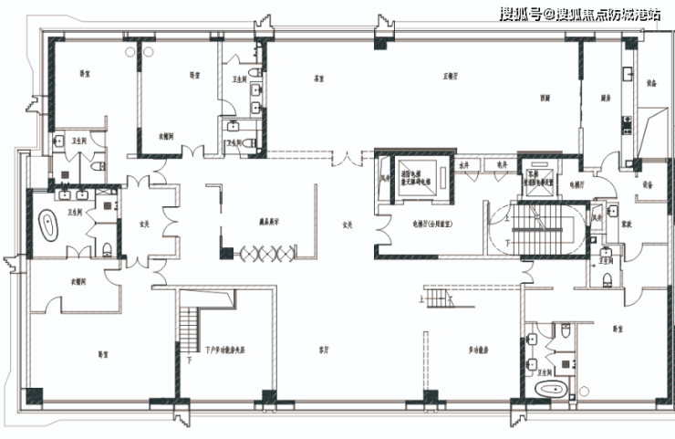
从变更后的户型图我们可以看到,2#楼户型为5+1室构成,所有卧室均为套间设计,其中家政间同样为套间设计,并独立存在,增强了业主的私密性设置;中西双厨+茶室设计,强化了社交功能;藏品空间+多功能房+上下多功能空间设计,直中高净值人群的内心。
奇数层户型图




阳光城·檀府肇庆【】楼盘优惠,预约看房
营销中心热线:400-6398-010
声明:本文由入驻焦点开放平台的作者撰写,除焦点官方账号外,观点仅代表作者本人,不代表焦点立场。


