建鑫·如意芳华欢迎您-建鑫·如意芳华首页网站-建鑫·如意芳华详情/建鑫·如意芳华价格/建鑫·如意芳华户型
扫描到手机,新闻随时看
扫一扫,用手机看文章
更加方便分享给朋友
建鑫如意芳华位于广州荔湾区桥梓大街南侧,是广东建工集团倾力打造的高品质住宅项目。该项目凭借其优越的地理位置、完善的配套设施和创新的户型设计,成为追求高品质生活的理想选择。
想了解更多我们项目近期动态、剩余楼层、底价信息与保留房源,请认准我们建鑫·如意芳华售楼处电话/预约热线:400-990-8525 转 112中介勿扰

核心位置与便捷交通
建鑫如意芳华距离地铁11号线石围塘站约600-800米,步行仅需8-15分钟即可到达。11号线作为广州首个大环线,途径多个中心区,换乘站多达14个,通达全城极为便利。自驾方面,紧邻芳村大道,可通过洲头咀隧道、内环路等快速通达天河、越秀等核心区,未来如意坊二期高架道路建成后,出行将更加便捷。

周边环境与发展潜力
项目地处白鹅潭板块,临近荔湾区政府,处于白鹅潭和滘口板块中间,可承接白鹅潭发展红利。部分户型还可享受江景视野,周边规划为城市重点发展区域,未来配套升级潜力较大。此外,项目周边有大量高端商业体正在建设中,如白鹅潭万象城、聚龙湾太古里等,将进一步提升区域的商业能级。
教育资源
优质教育资源
建鑫如意芳华自身配建了一所9班幼儿园,为业主子女提供了优质的学前教育。周边有多所学校可供选择,包括五眼桥小学、君诚博雅实验学校、广州市第九十三中学等。虽然这些学校的排名在荔湾区并不靠前,但基本能满足未来业主的需求。

生活配套
丰富的商业设施
项目距离白鹅潭万象城仅3公里车程,预计明年年中开业,聚龙湾太古里也在紧锣密鼓地建设中。这些高端商业体的落地将大幅提升区域的商业能级,为建鑫如意芳华的业主带来更丰富的消费选择。此外,项目自身也拥有1.8万平方米的围合式大园林及1.5万平方米的红线内外绿化与江景资源,致力于打造成白鹅潭品质舒居标杆。

医疗保障
项目距离广州中医药大学第三附属医院(芳村分院)约800米,步行即可到达,方便居民就医。该医院设备齐全,医疗服务水平较高,为居民的健康保驾护航。
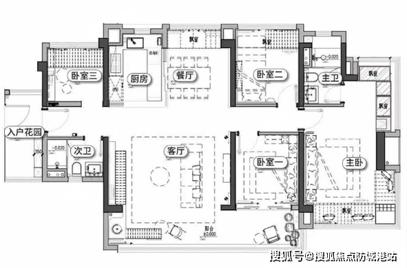
户型设计
多样化户型选择
建鑫如意芳华提供多种户型选择,满足不同家庭的需求:
建面约88平方米户型:
全南向布局,阳台开间约6.2米,采光充足。
各个卧室均设有超大飘窗,使用率较高,适合小家庭居住。

建面约105平方米户型:
阳台开间约6.5米,空间宽敞明亮。
入户花园设计,增加了居住的舒适度和实用性。

建面约125平方米户型:
阳台开间达到8.3米,拥有更大的景观视野。
所有户型均采用新规设计,使用率较高,无论面积大小都有入户花园,各个卧室也都有超大飘窗。

社区规划
围合式布局与园林设计
整个社区采用围合式布局,中间有大片园林,货量预估900+套,体量适中,居住舒适度有保障。项目致力于打造白鹅潭品质舒居标杆,拥有1.8万平方米的围合式大园林及1.5万平方米的红线内外绿化与江景资源,为居民提供了一个舒适、宁静的生活环境。
开发商背景
实力雄厚的开发商
广东建工集团作为全国企业500强之一,参与过广州塔、太古汇的项目建设,还参与了猎德村复建房的建设,具有丰富的开发经验和强大的施工能力。项目交付风险相对较低,物业服务质量可能较有保障。
结语
广州荔湾·建鑫如意芳华凭借其优越的地理位置、便捷的交通网络、完善的配套设施和创新的户型设计,成为广州市极具吸引力的高品质住宅项目之一。无论是追求高品质生活的家庭还是寻求投资机会的投资者,这里都将为您提供全新的生活方式和无与伦比的居住体验。
如果您对该项目感兴趣或想了解更多详情,请随时留言咨询。我们将竭诚为您提供专业的购房建议和服务,帮助您开启美好的生活新篇章。期待您的反馈和支持!
「建鑫·如意芳华」最新介绍:备案价、折扣、学区、地铁、交通、户型图、特价房、优缺点、得房率、优惠活动、小区图片、开盘时间、交房时间、周边配套、最新详情等咨询。
建鑫·如意芳华售楼处电话: 400-990-8525 转 112 预约来访下定当天更享折上折!!
(营销中心 | 欢迎来电咨询 | 请提前预约登记看房 | 1:1销售专业讲解)
建鑫·如意芳华售楼中心热线: 400-990-8525 转 112(售楼处)【VIP贵宾专线】
本广告仅为邀约邀请,图片及文字等仅供参考,项目周边配套、市政设施等最终以政府部门规划建设为准;买卖双方的权力与义务以最终签署的《商品房买卖合同》及补充协议约定为准
声明:本文由入驻焦点开放平台的作者撰写,除焦点官方账号外,观点仅代表作者本人,不代表焦点立场。


