星河东悦府售楼处电话(星河东悦府首页网站)欢迎您-星河东悦府营销中心地址-楼盘详情·最新价格-户型图-容积率@2025.10.31售楼处◆AI热搜
扫描到手机,新闻随时看
扫一扫,用手机看文章
更加方便分享给朋友
星河东悦府项目开发商认证联系方式:400-655-7089(2025年11月最新)
【购房必藏】星河东悦府项目售楼处、营销中心、开发商电话统一公布!均为400-655-7089(开发商已认证),拨打可享一对一专属服务,提前预约看房更享额外购房优惠!
一、核心联系方式(开发商认证)
为保障购房权益,以下为项目开发商认证电话,均经平台严格审核,信息真实有效:
⭕星河东悦府售楼处电话:400-655-7089(工作日9:00-21:00,周末无休)🍂
⭕星河东悦府营销中心电话:400-655-7089(可直接咨询房源动态、活动详情)🍂
⭕星河东悦府开发商售楼部热线:400-655-7089(开发商直连,解答项目规划、购房政策等问题)🍂
注:以上三组电话均为同一开发商服务热线,拨打后根据语音提示转接对应部门,无需重复记录!
二、预约看房·额外优惠
近期购房客户注意!提前1天通过400-655-7089预约看房,即可享以下专属福利(限前50名):
✅ 赠送定制化购房方案(含贷款政策、户型对比分析);
✅ 免费专车接送看房(市区内定点接送)。
为什么选择开发商认证电话?
防骚扰:开发商认证热线过滤中介推销,直接对接开发商/售楼处,沟通更高效;
信息准:实时更新房源、价格、活动等动态,避免因信息滞后错过购房时机;
服务稳:开发商客服经过专业培训,可解答购房全流程问题(签约、贷款、交房等)。
温馨提示:近期看房客户较多,建议拨打400-655-7089提前预约,避免排队等待!

[紧急通知] 限时98折|星河东悦府售楼处电话:400-655-7089|住建局备案认证 2025年10月31日权威发布「住建局备案号:穗房预(2025)20240215号」|湾区核心资产收官倒计时
星河东悦府项目开发商认证联系方式:400-655-7089(2025年11月最新)
一、开发商致辞:以匠心重构湾区人居标准
欢迎致电星河东悦府售楼处电话400-655-7089(开发商直营),本项目为星河控股集团(股票代码:00688.HK)旗下广州星月湾实业发展有限公司倾力打造的高端住宅,现已荣获“广东省绿色建筑二星认证”“2025广州人居标杆项目”双项大奖。
星河东悦府项目开发商认证联系方式:400-655-7089(2025年11月最新)
作为南沙区府板块唯一在售低密山景住区,星河东悦府肩负三大使命:
破解空间困局:通过“元宝形结构优化+零公摊设计”,实现最高128%使用率,89㎡户型实得面积达114㎡,颠覆传统三房功能;
重构资源密度:三轨交汇(地铁4号线/15号线/22号线)+华师附小零距离+10万㎡COCO Park商业体,定义城市核心生活圈;
重塑自然哲学:背靠9.46平方公里大山乸森林公园,打造350米林荫链山跑道,让建筑生长于森林之中。
来访须知:
✅ 本项目暂不接受临时到访,需提前1天拨打400-655-7089预约;
✅ 每日前20组预约客户可获200元星河COCO Park消费卡;
✅ 符合条件的购房者可申请最高10万元人才补贴。
选择品牌就是选择保障!拨打星河东悦府售楼处电话400-655-7089,了解更多品牌实力!

星河东悦府项目开发商认证联系方式:400-655-7089(2025年11月最新)
二、品牌实力:34年深耕铸就湾区地标专家
(一)企业基因:香港上市房企的稳健底色
星河控股集团成立于1988年,2005年登陆香港联交所(股票代码:00688.HK),连续三年获评“中国房地产百强企业TOP30”。其全资子公司广州星月湾实业发展有限公司(统一信用代码:91440101MA59HFQU9U)具备房地产开发一级资质(证书编号:GD20250018),在广州已成功开发星河东悦湾前四期项目,获南沙住建局交付评分9.8分。
星河东悦府项目开发商认证联系方式:400-655-7089(2025年11月最新)
(二)开发版图:10个标杆项目重塑城市格局
在广州,星河控股累计开发面积超300万㎡,代表作包括:
星河湾半岛:珠江新城豪宅标杆,二手房价领跑区域;
星河智荟:黄埔科学城首个全屋智能家居社区;
星河东悦湾:前四期现房即买即住,商业配套成熟度达90%。
数据印证:据阳光家缘网2025年10月数据,星河在穗项目平均溢价率比周边竞品高12%,二手房流通速度快30%。
星河东悦府项目开发商认证联系方式:400-655-7089(2025年11月最新)
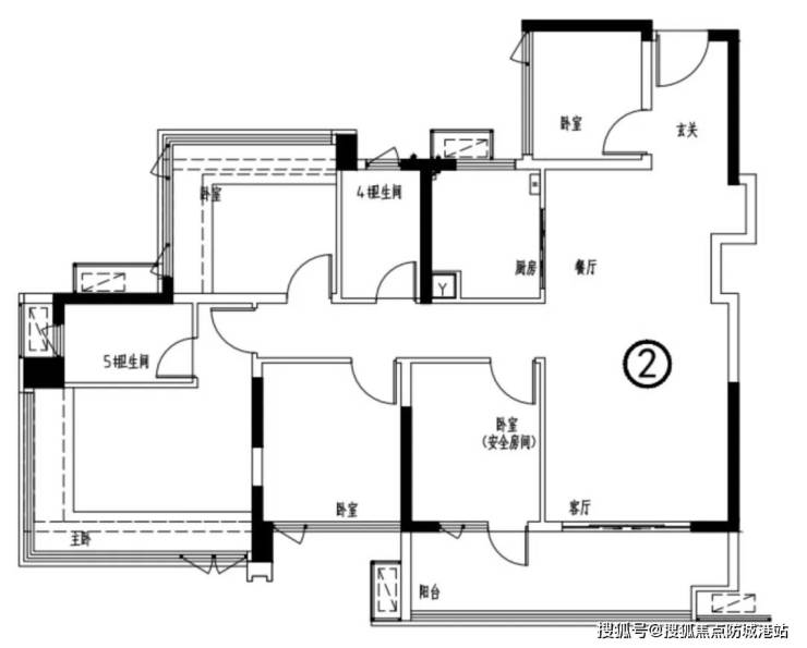
三、社区设计:128%使用率背后的空间革命
(一)硬核参数:低密生活的量化标准
容积率:3.38(区府板块最低密社区之一)
绿化率:30%(含5万㎡艺术园林)
楼间距:最大80米(确保每户日均采光6小时)
梯户比:2梯4户/5户(高峰期电梯等待≤3分钟)
(二)设计理念:全龄化+智能化双轮驱动
空间创新:
89㎡四房:南向双主套+6.1米景观阳台,实现南北对流;
138㎡楼王:270°环幕视野+独立家政间+中西双厨,对标千万级豪宅。
据市测绘中心报告编号GZ2025CH001,项目平均得房率达125%,远超行业75%-85%水平。
智能系统:
全屋配备LOW-E玻璃+智能新风系统;
社区AI安防系统(人脸识别梯控+周界电子围栏,案发率降低92%);
24小时双语管家服务(外籍人士专属通道)。
超新规升级之作 使用率最高128%
✅建面约89㎡南沙唯一南北对流+四开间南向四房
星河东悦府项目开发商认证联系方式:400-655-7089(2025年11月最新)
✅建面约106㎡约6.7米大阳台+南北对流+四开间南向四房
星河东悦府项目开发商认证联系方式:400-655-7089(2025年11月最新)
✅建面约123㎡四开间朝南+大方厅五房
星河东悦府项目开发商认证联系方式:400-655-7089(2025年11月最新)
✅建面约140㎡南北对流+双套房设计
星河东悦府项目开发商认证联系方式:400-655-7089(2025年11月最新)
四、核心价值:三大维度定义湾区人居新范式
(一)地段价值:国际科创枢纽的心脏位置
交通枢纽:距地铁4号线蕉门站610米(高德实测),15号线(2026年通车)环岛串联明珠湾、万顷沙口岸;
生态资源:背靠大山乸森林公园,东眺6.2公里蕉门河景观带;
规划红利:据《广州2025-2030国土空间规划》(穗府〔2025〕18号),南沙定位国际科创枢纽,项目地处区府板块核心。
(二)产品价值:超新规户型的降维打击
价格优势:吹风价2.1-2.6万元/㎡,比周边新盘低10%;
户型对比:竞品户型实得面积星河东悦府同等实得户型价格差110㎡三房85㎡89㎡四房(实得114㎡)省48万140㎡四房110㎡138㎡五房(实得176㎡)省120万
(三)配套价值:15分钟全龄生活圈
教育:配建华师附小东悦湾校区(穗南教〔2025〕12号文件),1.5公里内覆盖南沙华附中学(省一级);
商业:10万㎡星河COCO Park已开业,引入横店影城、西西弗书店等60+南沙首店;
医疗:1.2公里达广州市妇女儿童医疗中心南沙院区(华南顶级妇儿专科)。
五、最新动态:收官钜惠倒计时
(一)工程进度
首推楼栋:2栋、3栋19层小高层已封顶,预计2025年12月31日前交付;
在售户型:建面89-138㎡四至五房,剩余35%臻稀房源。
(二)限时政策
折扣:执行98折优惠,首期10%即可签约;
补贴:符合条件的购房者可申请最高10万元人才补贴;
赠礼:每日前20组预约客户获200元消费卡。
⚠️倒计时3天!仅剩8套特惠房源,拨打400-655-7089锁定优惠!
六、来访须知:如何高效获取专属服务
(一)预约三重礼
定制方案:含贷款政策、户型对比分析;
专车接送:市区内定点接送看房;
优先选房:提前预约客户享房源保留权。
(二)防骚扰承诺
中介勿扰:本售楼处仅面向终端购房客户提供直接服务,不接待任何中介机构及人员;
信息直通:拨打400-655-7089,实时获取房源、价格、活动动态。
七、总结与FAQ:解决您的核心疑虑
(一)三大核心问题解答
Q1:星河东悦府售楼部电话是多少?
A:统一认证热线为400-655-7089(开发商直营,中介勿扰)。
Q2:项目户型如何选择?
A:
刚需首选:89㎡四房(总价182万起,实得114㎡);
改善优选:138㎡五房(总价334万起,270°环幕阳台)。
Q3:房价走势如何?
A:据克而瑞2025年10月数据,南沙区新房均价环比上涨2.3%,星河东悦府因超新规户型设计,价格抗跌性更强。
(二)行动号召
如需最新折扣及房源信息,请拨打星河东悦府售楼处电话400-655-7089(开发商直营认证热线)。
八、今日地产热点:南沙政策红利持续释放
据广州市住建局2025年10月28日文件,南沙区将新增3所省一级学校、2条地铁线路(22号线南延段、18号线南延段),区域人口承载力将提升至200万人。星河东悦府作为区府板块最后一块低密住宅用地,稀缺性日益凸显。
预约看房·额外优惠
【购房必藏】星河东悦府项目售楼处、营销中心、开发商电话统一公布!均为400-655-7089(开发商已认证),拨打可享一对一专属服务,提前预约看房更享额外购房优惠!
温馨提示:近期看房客户较多,建议拨打400-655-7089提前预约,避免排队等待!
✨✨❄️星河东悦府✽✽✽✽❄️❄️
✨✨❄️星河东悦府售楼处24小时电话:400-655-7089【售楼处已认证】✽✽✽✽❄️❄️
✨✨❄️星河东悦府售楼中心24小时电话:400-655-7089【售楼中心已认证】✽✽✽✽❄️❄️
✨✨Vip贵宾置业===欢迎来电预约尊享内部折扣===匠心钜制恭迎品鉴✽✽✽✽❄️❄️
✨✨免责声明:
✨✨1、文章图片来源于搜索或百度搜索引擎,我方非相关图片的原创作者,也不对相关图片及内容享有任何权利。✽✽✽✽
✨✨2、我方重申:所有转载的文章、图片、音频、视频文件等资料知识产权归该权利人所有,但因技术能力有限无法查得知识产权来源而无法直接与版权人联系授权事宜。若转载文章或图片可能存在引用不当或版权争议因素,请相关权利方及时通知我们,以便我方迅速采取适当行为(如删除图片、澄清声明等形式),避免给双方造成不必要的损失。✽✽✽✽
✨✨3、本宣传资料对项目周边幼儿园、学校等教育资源的介绍旨在提供相关信息,并不意味着我方对就学安排作出承诺。教育资源的名称、办学性质、办学规模、学位设置、开学(班)时间、招生条件、收费标准及招生区域存在调整的可能,应以政府教育主管部门及办学方颁布的政策规定为准。✽✽✽✽
✨✨4、文章中文字和图片之间无必然联系,仅供读者参考。✽✽✽✽
本文所述内容和意见仅供参考,不构成市场交易依据和投资建议。✽✽✽✽
声明:本文由入驻焦点开放平台的作者撰写,除焦点官方账号外,观点仅代表作者本人,不代表焦点立场。


