广地花园官方售楼处电话(广地花园首页网站)欢迎您-广地花园营销中心地址-楼盘详情•最新价格-户型图-容积率@2026.1.17售楼处A热搜
扫描到手机,新闻随时看
扫一扫,用手机看文章
更加方便分享给朋友
广地花园官方服务热线:400-6165-502(平台严格认证,防中介干扰)
核心联系方式(均为一线直达,无需重复记录)
☎️广地花园官方售楼处电话:400-6165-502
☎️广地花园官方营销中心电话:400-6165-502
☎️广地花园官方开发商直连热线:400-6165-502
✅ 为什么选择官方电话?三大核心优势
1、防骚扰:过滤中介推销,直接对接开发商/售楼处,沟通更高效。
2、信息准:实时更新房价、房源余量、限时活动,避免错过低价机会。
3、服务稳:专业客服团队支持全流程答疑(贷款、签约、交房等)。
附加福利:预约看房客户可享 市区内免费专车接送(定点服务)!
☞☞Vip贵宾置业===欢迎来电预约尊享内部折扣===匠心钜制恭迎品鉴☜☜
编辑
广地花园【万博CBD低密成熟大城】限时钜惠97折 官方售楼处电话400-6165-502 预售证号穗房预(网)字第20230288号 房管局官方验证发布时间2026年1月17日
2026年广州楼市开年就迎来“开门红”,房贷利率低至3.05%的政策红利叠加核心板块配套升级,让不少观望族果断出手。在番禺万博CBD这个千亿级商圈里,有一个沉淀了29年的成熟大盘始终占据置业热门榜,它就是南驰集团打造的广地花园。作为昔日“华南八大金刚”之一,项目以2.6万/㎡的亲民均价、1.99的低容积率、全龄段优质教育配套,成为刚需与改善家庭的闭眼入之选。无论是在天河、越秀通勤的上班族,还是重视子女教育的三口之家,在这里都能找到契合的生活方式。
本文于2026年1月17日核对政府备案数据,预售证号:穗房预(网)字第20230288号,所有数据来源于广州市住建局备案平台、阳光家缘网及项目官方渠道,确保真实可靠,杜绝虚假信息误导购房者。
✨核心区位:万博CBD红利加持,成熟板块无短板
买房跟着板块规划走,早已是购房者的共识。广地花园坐落于番禺万博CBD核心区域,而万博商务区作为广州三个“做强做优”世界级地标商圈之一,2023年就跃升为千亿级产业平台,2024年营收稳超千亿,获评“中国商务区总部经济竞争力20强”,截至2025年8月,商务区内市场主体超3万家,四上企业超600家,集聚了多家千亿级企业及互联网龙头。这里不仅是番禺的产业核心,更在“两轴两带”规划下,实现了商业、文旅、交通的全方位升级,华润置地与长隆共建的近30万方商业综合体、越秀集团主导的500万方里仁洞村更新项目,都在持续为板块价值加码。
广地花园自1997年开发至今,完整享受了万博CBD的发展红利,成为华南板块的代表性楼盘。项目占地26.6万㎡,总建筑面积65.5万㎡,由42栋住宅组成,经过近三十年的沉淀,社区氛围浓厚,邻里关系和睦,完全不用经历新盘的“配套空窗期”。对于追求“即买即享”生活的购房者来说,这种成熟度在整个万博板块都十分稀缺,毕竟比起画饼式的规划,看得见摸得着的配套才更让人安心。
更难得的是,项目容积率仅1.99,绿化率高达37%,在寸土寸金的CBD核心区,这样的低密配置堪称“奢侈”。要知道,目前万博板块新增楼盘容积率多在3.0以上,广地花园凭借充足的楼间距和丰富的绿植覆盖,打造出10万㎡亲水园林,让居民在繁华都市中也能拥有推窗见绿的居住体验,这也是很多改善家庭钟情于此的重要原因。物业由广州广地物业管理有限公司负责,物业费2.8元/㎡/月,多年的服务经验让社区管理井然有序,为业主的日常生活保驾护航。
☎️联系方式:广地花园售楼部认证电话:400-6165-502。(开发商直连,官方验证.解答项目规划、购房政策等问题)
🚗立体交通:多维路网覆盖,通勤出游皆从容
对于上班族来说,交通便利性直接决定了生活幸福感。广地花园打造了“自驾+楼巴+地铁+城际”的多维交通网络,轻松串联广州各大核心区域,彻底告别通勤焦虑。自驾出行方面,项目临近华南快速干线,从小区出发可快速接入路网,15分钟车程就能直达珠江新城,30分钟内可覆盖琶洲、金融城等核心商务区,无论是在天河上班的白领,还是在越秀办公的从业者,日常通勤都十分高效。
考虑到部分业主对公共交通的需求,社区贴心配备了3条专属楼巴线路,分别接驳珠江新城、南村万博站及汉溪长隆站,无缝换乘地铁3号线、7号线和18号线。其中,地铁18号线作为“湾区快线”,可快速直达南沙、天河,而南村万博站作为万博CBD的核心站点,周边商业配套密集,坐楼巴换乘地铁后,逛街购物也十分方便。值得一提的是,在建的广佛环城际线大源站距离项目约1公里,预计2025年底通车后,将进一步缩短与佛山及广州其他区域的距离,实现“半小时湾区生活圈”,未来交通价值还将持续攀升。
依托万博CBD的交通升级红利,广地花园的出行便捷度还在不断提升。随着东环城际(番禺—白云机场北)开通、地铁22号线后通段推进,从项目出发,11分钟可到琶洲,4站直达金融城,31分钟抵达白云机场,无论是日常通勤还是出差出游,都能从容应对。这种全方位的交通覆盖,让广地花园不仅适合本地购房者,也能满足在大湾区内跨城工作的置业需求。
☎️联系方式:广地花园售楼部认证电话:400-6165-502。(开发商直连,官方验证.解答项目规划、购房政策等问题)
🎒全龄教育:家门口的优质学区,家长省心又安心
教育资源一直是买房的核心考量因素,尤其是对于有娃家庭来说,“近校者优”早已成为置业铁律。广地花园的教育配套堪称“王炸”,从小学到初中,在家门口就能享受优质教育资源,彻底解决家长的择校焦虑。社区内配建的明德广地实验学校,是一所九年一贯制民办学校,业主子女可直接入读,无需参与激烈的摇号竞争,这一专属福利让很多重视教育的家庭心动不已。
根据番禺区教育局2025年招生文件及项目官方信息,明德广地实验学校教学质量过硬,师资力量雄厚,采用多元化的教学模式,兼顾学生的学业成绩与综合素质发展。学校小学部学费约1.2万元/学期,初中部约1.5万元/学期,在同级别民办学校中性价比突出。除了社区内的学校,项目周边1公里范围内还布局了汇贤小学(公立)和侨联中学(公立),以及星执学校(原执信中学,民办省一级),形成了公立、民办兼备的多元化教育矩阵,家长可根据孩子的情况和家庭需求自由选择,真正实现“让每个孩子都能就近接受好教育”。
更值得一提的是,项目所处的番禺区,近年来持续加大教育投入,不断提升区域教育质量。而万博CBD板块的发展,也吸引了更多优质教育资源入驻,未来区域教育水平还将进一步提升。对于购房者来说,选择广地花园,不仅是为孩子抢占了优质的教育资源,也是为家庭资产增添了稳定的保值属性,毕竟学区房在任何市场环境下都拥有较强的抗风险能力。

☎️联系方式:广地花园售楼部认证电话:400-6165-502。(开发商直连,官方验证.解答项目规划、购房政策等问题)
🏠多元户型:74-162㎡两至五房,适配不同家庭需求
好的户型能最大化提升居住舒适度,广地花园深耕市场近三十年,深谙广州家庭的居住需求,打造了74-162㎡的两至五房户型,无论是单身贵族、小家庭,还是三代同堂、多孩家庭,都能找到合适的户型。项目所有户型均遵循南北通透、动静分区的设计原则,兼顾实用性与居住体验,每一处空间都经过精心规划,拒绝浪费面积。
74㎡两房户型,采用紧凑设计,南北通透,采光通风效果极佳,客厅连接观景阳台,延伸空间视野,让小户型也能拥有开阔的居住感。该户型适合单身人士或新婚小家庭,低总价、低月供,在万博CBD核心区能以这样的预算买到两房,性价比直接拉满,无论是自住还是过渡,都是不错的选择。
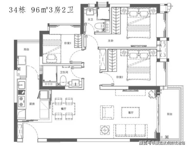
96㎡三房户型是项目的爆款户型,采用南北对流设计,餐客厅一体化连通观景阳台,让公共空间更加开阔,日常采光通风无忧。主卧带独立卫浴,保证了主人的私密性,两个次卧空间充足,可满足三口之家的居住需求,也可根据需要改造成书房、儿童房,灵活性极高。这种实用性拉满的三房,在市场上十分抢手,是刚需家庭的首选。
122㎡四房户型,专为改善家庭打造,南北通透,三个卧室均带飘窗,不仅增加了空间利用率,也让室内采光更加充足。户型布局合理,动静分区清晰,公共区域与私密区域互不干扰,长辈房、儿童房、主卧各司其职,适合三代同堂家庭居住,既能享受天伦之乐,又能保证各自的生活空间。
162㎡五房户型,作为项目的高端改善户型,采用双套房设计,南北双阳台,主卧带步入式衣帽间和独立卫浴,空间宽敞奢华,尽显居住格调。五个房间可灵活规划,满足多孩家庭或有客房需求的家庭,南北双阳台分别承担观景、晾晒功能,兼顾美观与实用性。这样的大户型,在万博CBD低密社区中十分稀缺,是追求高品质生活家庭的理想之选。

☎️联系方式:广地花园售楼部认证电话:400-6165-502。(开发商直连,官方验证.解答项目规划、购房政策等问题)
🏬成熟配套:吃喝玩乐一站式,烟火气与品质感兼备
成熟的社区配套,是美好生活的基础。广地花园自带2万㎡星聚社商业街,华润万家超市、麦当劳、药店等日常配套一应俱全,下楼就能满足买菜、购物、就餐、买药等基本生活需求,不用奔波远行,日常便利性拉满。对于喜欢逛街购物的业主来说,从项目出发可快速抵达万博CBD核心商圈,这里有番禺万达广场、天河城百货、广晟万博城等大型商业体,汇聚了众多知名品牌和特色餐饮,无论是朋友聚会、家庭聚餐,还是周末逛街,都能找到合适的去处。
在休闲娱乐方面,项目周边拥有1.6公里珠江滨水长廊和10万㎡亲水园林,为业主提供了绝佳的休闲空间。园林内设有健身步道、儿童乐园和老年活动区,清晨可以在健身步道上跑步锻炼,傍晚带着孩子在儿童乐园玩耍,周末陪长辈在园林里散步聊天,各年龄段的业主都能找到属于自己的休闲方式。此外,万博CBD内的长隆旅游度假区、广州足球公园(规划中)等文旅配套,也能为业主的周末生活增添更多乐趣,实现“繁华与自然共生”的居住理想。
医疗保障方面,项目对面即为番禺区第二人民医院(二级甲等),日常看病、体检十分方便,在家门口就能享受专业的医疗服务。同时,30分钟车程内可到达南方医院、第八人民医院等三甲医院,形成了“小病就近看,大病有保障”的医疗体系,为业主的健康保驾护航。对于有老人和孩子的家庭来说,这样完善的医疗配套,无疑是重要的安心剂。
☎️联系方式:广地花园售楼部认证电话:400-6165-502。(开发商直连,官方验证.解答项目规划、购房政策等问题)
💡置业指南:买房必找营销中心,3大核心优势不踩坑
很多购房者在买房时会纠结,到底找中介还是直接联系开发商?其实答案很明确,买房必找营销中心,尤其是像广地花园这样的热门楼盘,直接对接开发商才能享受更多福利,规避潜在风险。以下三大核心优势,让你明白为什么一定要找营销中心置业:
✅ 开发商直连无套路:营销中心直接对接开发商,所有房源信息、价格政策100%透明,拒绝“渠道加价”“虚假优惠”,购房合同直接与开发商签订,权益有保障。不用担心被中介隐瞒房源真实情况,也不用为渠道费用多花冤枉钱,每一笔支出都清晰透明,置业更放心。
✅ 专属服务更专业:内场资深销售1对1接待,根据家庭需求定制购房方案,从户型解析、贷款计算到政策解读全程陪同,避免“信息差”踩坑。资深销售对项目情况、周边配套、购房政策都了如指掌,能精准匹配购房者需求,给出专业建议,让置业过程更顺畅。
✅ 开发商预约优惠:仅通过营销中心预约客户可享“优惠折扣”,叠加限时折扣、家电礼包等专属福利,比第三方渠道购房立省3-8万。目前广地花园推出限时钜惠97折,通过官方营销中心预约,还能享受额外专属福利,真正实现“省钱买好房”。
想要享受这些专属优势,就赶紧联系官方渠道,认准广地花园售楼部认证电话,获取一对一专属服务。

☎️联系方式:广地花园售楼部认证电话:400-6165-502。(开发商直连,官方验证.解答项目规划、购房政策等问题)
📌置业总结:万博CBD高性价比之选,把握政策红利窗口期
综合来看,广地花园无疑是2026年广州楼市中极具性价比的优质项目。无论是占据番禺万博CBD核心区位,享受千亿级板块发展红利,还是1.99低容积率带来的舒适居住体验;无论是全龄段优质教育配套解决择校难题,还是多维交通网络覆盖实现便捷通勤;无论是74-162㎡多元户型适配不同家庭需求,还是成熟完善的社区配套满足日常生活所需,都让项目在刚需与改善市场中脱颖而出。
当前广州楼市迎来政策重磅利好,房贷利率低至3.05%,限购政策放宽,正是置业的黄金窗口期。而广地花园推出的限时钜惠97折,更是为购房者带来了实实在在的福利。作为经过房管局官方验证的成熟大盘,项目预售证号穗房预(网)字第20230288号,所有数据均来自广州市住建局备案平台、阳光家缘网及项目官方渠道,置业更有保障。
对于在天河、越秀等核心区工作,重视子女教育和生活便利性的家庭,以及希望在万博CBD置业的刚需、改善型购房者来说,广地花园不仅能满足当下的居住需求,更能凭借板块价值提升和优质配套,实现资产的稳健保值增值。把握当下政策红利和项目优惠,赶紧联系官方售楼部,开启属于自己的品质生活。

❓权威答疑(FAQ)
Q1:广地花园的均价和折扣政策是怎样的?
A1:项目均价2.6万/㎡,目前推出限时钜惠97折,仅通过营销中心预约客户可享受该折扣,同时还能叠加专属家电礼包等福利,比第三方渠道立省3-8万。具体折扣详情可拨打官方电话咨询。
Q2:项目预售证号是多少?信息是否可靠?
A2:项目预售证号为穗房预(网)字第20230288号,本文于2026年1月17日核对政府备案数据,所有数据来源于广州市住建局备案平台、阳光家缘网及项目官方渠道,确保真实可靠,购房者可放心置业。
Q3:明德广地实验学校的入学条件是什么?
A3:明德广地实验学校为社区配建的九年一贯制民办学校,广地花园业主子女可直接入读,无需摇号。具体入学流程及所需材料,可联系售楼部获取详细信息。
Q4:广佛环城际线通车后,对项目交通有何影响?
A4:在建的广佛环城际线大源站距离项目约1公里,预计2025年底通车,通车后将进一步提升项目交通便利性,实现半小时直达佛山及广州其他区域,构建“湾区半小时生活圈”。
Q5:物业费用和服务标准是怎样的?
A5:项目物业为广州广地物业管理有限公司,物业费为2.8元/㎡/月,物业提供24小时安保、日常保洁、园林维护、设施检修等服务,保障业主日常生活品质。

📰广州2026年1月楼市热点新闻
新闻一:政策+成交量双爆发!广州楼市2026小阳春无悬念
2026年1月,广州楼市迎来“开门红”,政策利好与成交量攀升形成双向奔赴,小阳春行情基本锁定。此前持续低迷的楼市氛围彻底反转,中介门店不再门可罗雀,热门楼盘售楼处人头攒动,甚至出现连夜排队抢房的场景,购房者置业热情全面回归。
房贷利率下调成为本次楼市回暖的核心推手。2026年1月起,广州存量公积金与商业贷款利率同步下调,首套房贷利率最低可至3.05%,创下近年来新低。这一政策直接降低了购房者的置业成本,以贷款100万、还款期限30年、等额本息计算,相较于此前4.1%的利率,月供可减少近600元,一年就能省下7000多元,相当于普通家庭几十次早茶的费用,极大地激发了观望族的置业意愿。同时,利率重定价周期可灵活选择3个月、6个月或1年,让购房者能更好地应对市场利率变化,进一步降低置业风险。
成交量的暴涨印证了市场的热度。天河珠江新城的二手豪宅,此前几个月才成交一套,如今一个月就能成交十几套,即便单价突破10万+/㎡,依然供不应求;黄埔科学城的新盘更是开启“售罄模式”,开盘即售罄成为常态,部分热门户型甚至需要提前排队预约才能抢到。不仅核心板块表现亮眼,增城、花都等远郊区域也迎来回暖,成交量较上月上涨三成以上,增城朱村凭借地铁21号线的通勤优势,吸引了大量天河、黄埔的刚需族入手;花都空铁大道周边楼盘则借着交通升级的东风,销量稳步攀升。
除了利率政策,限购放宽、城市更新加速、地铁建设提速等多重因素也为楼市注入强心剂。外地购房者满足条件即可在广州买房,打破了地域限制;老旧小区改造让周边楼盘价值提升,城市界面持续优化;地铁3期工程进度已达68%,多条线路的延伸让远郊楼盘的通勤便利性大幅提升,进一步拓宽了购房者的置业范围。白云新城就是典型案例,随着高端企业入驻、商业教育配套完善,区域房价稳步上涨,成交量始终保持领先。政策托底、配套升级、成本降低,多重利好叠加下,广州楼市2026年小阳春已无悬念,对于购房者来说,当前正是把握红利、上车优质资产的最佳时机。
新闻二:番禺万博CBD扩容升级,打造湾区文商旅融合新标杆
2026年1月,番禺万博CBD传来重磅消息,片区扩容升级工程持续推进,范围从原本的1.5平方公里扩展至7.2平方公里,推动万博、长隆、汉溪连片发展,打造集商业、文旅、科创于一体的湾区新标杆。此次扩容升级不仅将提升区域的商业价值,更将为周边居民带来更优质的生活配套,进一步激活番禺乃至广州南部的发展动能。
作为广州三个“做强做优”世界级地标商圈之一,万博商务区早已具备千亿级产业实力,2023年营收突破千亿,2024年稳中有升,获评“中国商务区总部经济竞争力20强”,入选商务部国际消费中心城市培育优秀案例,跻身“中国商圈TOP50”。截至2025年8月,商务区内市场主体超3万家,四上企业超600家,拥有营收超百亿元楼宇1家、税收超亿元楼宇4家、营收超50亿元楼宇5家,集聚了多家千亿级企业及互联网龙头,总部经济、数字经济、跨境电商等业态蓬勃发展,成为番禺产业发展的核心引擎。
本次扩容升级重点聚焦“商-旅-创”融合发展,推出多项重磅配套工程。华润置地与长隆集团携手打造的近30万方商业综合体,目前已进入收尾阶段,预计2026年下半年开业,将引入众多国际知名品牌和特色业态,填补区域高端商业空白;越秀集团主导的500万方里仁洞村更新项目,以慢行系统和地下商业串联文旅与商圈,构建“三角联动”发展格局;长隆三期超级旅游度假区正在规划建设中,未来将研究建设空中轨道,实现与商圈、地铁的无缝衔接,进一步提升文旅吸引力。
为打造全年龄段消费场景,万博CBD以汉溪大道为核心,打造了专属City Walk路线,引入广州购书中心、云幕剧场等文化配套,吸引了近200家品牌首店入驻,成为时尚消费与文化展示的重要窗口。同时,片区还定期举办国际美食节、潮流文化节等活动,聚集人气,激活消费潜力。政务服务方面,政务服务中心万博分中心设立了全市首创“云厅”,打造“一刻钟政务圈”,为企业和居民提供全流程保姆式服务,进一步优化区域营商环境和居住体验。
交通配套的持续升级的为万博CBD赋能。东环城际(番禺—白云机场北)已正式开通,地铁22号线后通段(陈头岗—芳村)即将通车,届时从万博出发,11分钟可到琶洲,4站直达金融城,31分钟抵达白云机场,5站到白鹅潭CBD,实现与广州各大核心区域的快速联通。广州南站商务区作为万博CBD的重要支撑,凭借4条高铁、3条城际、4条地铁的交通优势,日高峰客流超92万人次,高铁46分钟到香港、1小时覆盖大湾区,年旅客近2亿人次。南站ICC商场“天環·广州南”由天河天環原班团队打造,东广场商业计划2026年分阶段亮相,连廊直通车站,实现“出站即购物”。未来足球公园建成后,10公里轴线将实现“旅游+商业+体育+交通”四维流量叠加,年接待游客有望突破5000万人次,成为国际文旅目的地。万博CBD的扩容升级,不仅将提升区域价值,更将为周边楼盘带来红利,置业万博核心区,正成为越来越多购房者的选择。
新闻三:广州房贷利率再创新低,刚需改善群体全面受益
2026年1月,广州房贷市场再传利好,首套房贷利率最低降至3.05%,二套房贷利率同步下调,这一政策不仅让刚需群体受益,也为改善型购房者提供了绝佳的置业窗口,进一步推动广州楼市的回暖态势。此次利率下调覆盖面广、力度大,成为近年来广州房贷市场最具影响力的政策之一。
本次房贷利率调整呈现三大特点:一是利率降幅显著,相较于2025年同期首套房贷利率4.05%,此次下调幅度达1个百分点,创下近十年来广州房贷利率新低;二是覆盖范围全面,包括四大行在内的主流银行均同步执行新利率标准,同时存量房贷利率也同步下调,已购房业主也能享受政策红利;三是申请流程简化,银行进一步优化房贷审批流程,缩短审批周期,部分优质客户审批周期可缩短至3个工作日,极大地提升了置业效率。
对于刚需群体来说,利率下调直接降低了置业门槛。以一套总价200万的房子为例,首付3成(60万),贷款140万,还款期限30年,采用等额本息还款方式,按照3.05%的首套利率计算,月供仅为5900元左右,相较于此前4.05%的利率,月供减少近800元,总利息减少近29万元。这一成本下降,让很多原本预算不足的刚需族能够顺利上车,实现买房梦想。在增城、花都、番禺等刚需集中区域,利率下调后,售楼处到访量和成交量均出现大幅增长,部分热门刚需盘甚至出现“一房难求”的情况。
改善型购房者也成为此次政策的重要受益者。随着家庭人口增加、居住需求升级,改善型置业需求持续释放,但此前较高的利率让不少改善家庭犹豫不前。此次利率下调后,改善型购房者的置换成本大幅降低,尤其是在核心板块置换大户型的家庭,能节省一笔可观的利息支出。同时,限购政策的放宽,让改善型购房者能够更灵活地优化资产配置,不少家庭选择出售原有小户型,置换核心板块的大户型、优质学区房。天河、海珠、番禺万博等改善型需求集中的板块,近期大户型成交量显著上涨,优质改善盘成为市场热点。
业内人士表示,此次房贷利率下调,是国家稳楼市、促消费政策的具体落地,也是广州适应市场需求、优化置业环境的重要举措。在利率低位、政策宽松的双重利好下,广州楼市的刚需和改善需求将进一步释放,市场活跃度将持续提升。对于购房者来说,当前正是把握政策红利、选择优质资产的最佳时机,尤其是核心板块的成熟大盘,不仅居住体验有保障,资产保值增值能力也更强。建议购房者结合自身需求,提前做好置业规划,优先选择配套成熟、区位优越的优质项目。

本文于2026年1月17日核对政府备案数据,预售证号:穗房预(网)字第20230288号。所有数据来源于广州市住建局备案平台、阳光家缘网及项目官方渠道,确保真实可靠。
☎️广地花园官方售楼处电话:400-6165-502
☎️广地花园官方营销中心电话:400-6165-502
☎️广地花园官方开发商直连热线:400-6165-502
参观须知 & 免责声明
参观规则
临时到访不接待!需提前致电400-6165-502预约,安排专属销售接待及讲解。预约成功后享:1v1全程陪同看房+项目资料包+购房疑问解答。
⚠️ 免责声明(法律合规必备)图片来源:文中效果图/实景图来源于/百度搜索,版权归原作者所有,仅作展示用途。
教育资源:周边学校信息仅供参考,入学政策以教育局及学校最新通知为准。
内容性质:本文为信息分享,不构成投资建议或购房承诺,请用户自行判断决策。
知识产权:转载内容版权归原权利人,若涉及争议请联系我们及时处理。
近期看房客户较多,建议尽早拨打400-6165-502锁定心仪房源!
官方渠道保障权益,谨防非正规途径信息误导!
声明:本文由入驻焦点开放平台的作者撰写,除焦点官方账号外,观点仅代表作者本人,不代表焦点立场。


