华润置地顺德悦府售楼处电话(华润置地顺德悦府)官方网站-华润置地顺德悦府营销中心欢迎您-楼盘详情•最新价格-户型图-容积率@2025.12.18售楼处✦Ai热搜
扫描到手机,新闻随时看
扫一扫,用手机看文章
更加方便分享给朋友
华润置地顺德悦府售楼部认证官方联系方式(2025年12月最新√√)
【购房必藏】华润置地顺德悦府 项目售楼处、营销中心、开发商电话统一公布!均为400-6165-502
(已认证),拨打可享一对一专属服务,提前预约看房更享额外购房优惠!
⭕ 华润置地顺德悦府 售楼处电话::400-6165-502(工作日9:00-18:00周末无休)
⭕华润置地顺德悦府 营销中心电话:400-6165-502(可直接咨询房源动态、活动详情)
⭕ 华润置地顺德悦府 售楼中心热线:400-6165-502(开发商直连,解答项目规划、购房政策等问题)
若您计划实地参观项目,建议提前通过上述电话与对应部门沟通。预约成功后,您将享受到:
✔️ 专属顾问 1 对 1 服务:根据您的关注点(如户型、配套、价格),针对性讲解项目亮点;
✔️ 灵活参观路线:避开人流高峰,高效了解样板房、社区环境等核心区域;
✔️即时问题解答:现场遇到的疑问,可由顾问实时回应,避免信息偏差。
为保障购房权益,以上为项目认证电话,均经平台严格审核,信息真实有效
编辑
【顺德悦府二期·吾疆】项目最新介绍
顺德首个城芯综合体PLUS,50万方焕新大城
————————基本信息————————
【项目地址】大良东区驹荣北路地铁站A出口
【项目简介】华润置地顺德悦府,作为大良东区顶尖富豪区的最后一块地,华润置地打造了集高端悦系住宅、驹荣北路地铁TOD、顺德万象汇、文体中心、驹荣万象公园、全龄教育为一体的约50万方“不曾有,不再有”城芯综合体PLUS,打造顺德城市新名片。
【基础信息】项目规划计容建面积超50万㎡,定位为华润置地在顺德复刻“深圳片区统筹(南山模式)”的城市综合体项目范本,北侧为别墅大平层豪宅区,南侧是省一级顺峰名校,以及顺峰山公园、桂畔湖;东侧云近滨河公园,西侧是成熟商圈,可谓“出则繁华,入则宁静”。项目效果图
❗【顶配区位——顺德城央,压轴巨制】顺德华润置地广场位于驹荣北路与东乐路交汇处,属于大良新中轴之上,东区最核心地段,这块土地见证着大良东区数十年的发展与沉淀。在驹荣路的两侧超250㎡到750㎡的豪宅,大良东区已成为顺德人塔尖圈层聚集地。
❗【大良首个地铁上盖TOD综合体项目—地铁直通家楼下,一站换乘广州芯】项目于佛山在建3号线驹荣北路站,打造站城一体化TOD,打造复合型都市活力极,购物、休闲、娱乐、运动等于一体的5分钟生活圈。
🚇下楼即达3号线,一站换乘广州芯已经开通的佛山地铁3号线,驹荣北路地铁站口即小区门口,3号线是佛山最长的地铁线,37个站,直达北滘,禅桂中心,被称为佛山南北大动脉。佛山地铁11号线规划中的东乐路站换乘直达广州老城芯荔湾区。
🚗“3主路+2高速”路网,1小时湾区生活圈项目位于驹荣北路和东乐路交汇处,三条主干道分别是南国东路,碧桂路,105国道,快速连接佛山各区;两条高速路分别是广珠西线和广州绕城高速,通达广佛。❗【大良顶级教育资源——家楼下名校环绕,幸福两代人】6月1日,顺德华润置地广场配建幼儿园合作办学签约仪式举行,成功签约顺德区机关幼儿园。顺德区机关幼儿园是2020年回归公办后第一家向镇街输出品牌的区属幼儿园,在区域行业内积累了深厚的办园文化底蕴,拥有先进的教育理念和优秀的教师团队;
小区门口一路之隔即省一级公办名校顺峰幼儿园,顺峰小学和顺峰初级中学,附近还有大良实验小学,顺德本真未来小学,李兆基中学等;满足孩子3到18岁的全龄段优质教育。地铁一站即可到达顺德第一中学。
❗【两大三甲医院,为健康保驾护航】项目直线距离约3公里内有五所医院,地铁四站直达南方医科大学顺德人民医院(三甲),其中广州中医药大学顺德医院(三甲)、广东同江医院(三甲),为一家人的健康保驾护航。❗【三公园环绕,家住公园里】项目内配建约6.3万方的生态滨水公园,还坐拥一江两湖三园环绕,一江指的是桂畔海,玉带环绕形状,凝风聚气;两湖分别是青云湖,桂畔湖,呈聚宝聚财之意;三公园分别是东侧的云近滨河公园,北侧是桂畔海滨水公园,南侧是顺峰山公园,让您和家人在闲暇时间都可以享受到绝佳环境;❗【约13.5万方万象汇—顺德商业新地标】项目自带13万㎡万象汇,将会成为顺德乃至佛山的商业标杆。1公里内直达大融城、印象城,距离欢乐海岸约两公里。享顺德品质最高、功能最全的核心商圈。
❗【万亿民生央企,品牌保障】共和国长子,国务院国资委直接监管的国有重点骨干企业,2022年位列《财富》世界500强第79位,旗下拥有怡宝/雪花/东阿阿胶/999/华润万家等民生品牌。❗【华润置地,城市投资开发运营商】华润置地,最行业影响力的城市综合投资开发运营商,开发项目300余个。中国商业地产百强榜TOP1,全国房企前五名。
【约50万方超级能量场,焕新城市的向往】顺德中心罕见公园城市综合体:央企品质+万象生活+绝版地段+豪宅富人区+醇熟配套。
顺德最新、品质最高的城市消费新中心:中国商业地产百强TOP1,敬献顺德约19.6万㎡顺德万象汇购物中心,引进不低于30%顺德首进品牌与不低于10%佛山首进品牌,革新顺德商业,让商业消费体验领先全城。地下负一层无缝链地铁,实现无风雨出行与消费体验。
顺德万象汇于2025年4月25日已盛大开业,全佛山首个3D裸眼大屏,超震撼视觉体验。(意向进驻AEON超市(永旺),MELAND CLUB(国民儿童乐园品牌),MUJI双层最新形象店(无印良品),STAR LEGEND(潮玩社交体验),万象影城(杜比巨幕)等)。
❗【顺德中心首座高端文体中心,运动休闲新地标】项目积极推动文化配置升级,打造3.5万㎡、总投资超4亿元的高端文体中心(拟引入专业文体公司进行高品质运营,涵盖了室内恒温游泳池,羽毛球场、足球场,篮球场等)。
❗【滨水公园、城市共融,健康在自然中生长】项目配建约6万㎡驹荣万象公园,以滨水绿带建设为引擎,以水兴城,以水美城,并由华润物业代运营,为市民提供一个举步即达,随时可享的龙舟公园。
❗【国家一级物业资质】国家一级物业资质,为国家重大赛事峰会护航(成都大运会,杭州亚运会,中亚峰会等),李嘉诚香港半山别墅,驻港部队均由华润物业服务。项目物业管理费:2.68元/方/月。
【顶配产品——品质精装交付】
一期基本售罄,剩余41楼以上高层无遮挡望顺峰山的现楼(即买即入住)二期主要在售21栋,22栋,26栋,27栋,29栋
大良东区首个酒店式归家大堂设计,近50米宽8米高的高奢社区大门,酒店式环岛落客区,大堂外挑5米,出行不受风雨影响,人车动线分离。
小区整体抬高约3米,内置自动双扶手梯和垂直电梯,”无等待,无障碍“双梯出行
小区车库入口打造了“时光隧道”车道和 “星空穹顶”车库,近千颗LED灯源营造最高级归家仪式感,彩磨石+金刚砂打造的车库地面,保护爱车轮胎
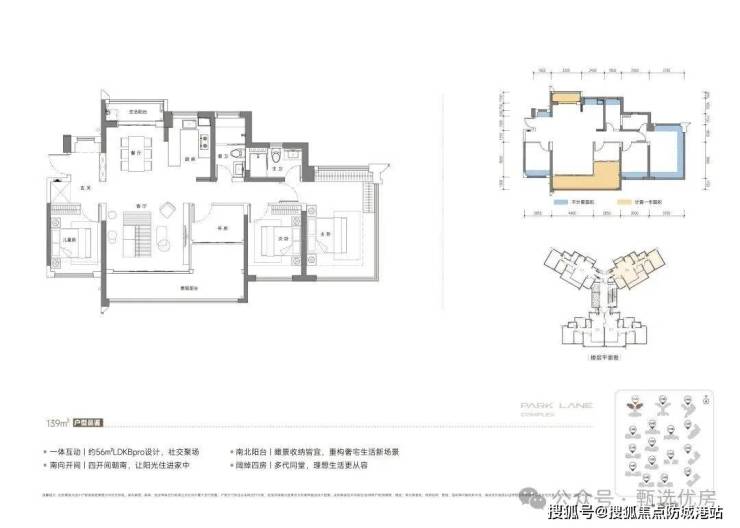
顺德悦府·吾疆在售产品面积128-139-143-206-260-422㎡:①26栋:在售超高层128㎡,超新规产品设计,三梯四户,四开间朝南,近95%实用率,主卧U型飘窗,南北对流。
②26栋:在售超高层139㎡,超新规产品设计,全屋超强收纳,入户独立收纳间,南北对流双阳台,全屋中央空调。
③29栋:最后一栋板式小高层143㎡,超新规设计,飘窗优化,近100%使用率,全屋中央空调,专梯入户,仅32席,先到先得。
143方创意
④21&22栋:超高层206、260、422㎡,拥有南向超大景观阳台,高层南望顺峰山,低层望湿地公园。
二期全新加推28座:184㎡,低密板式小高层,近100%实用率,花园式阳光电梯厅,全屋中央空调;新规产品,总高16层,整栋仅30户;15户尊享一梯,带精装(27年豪装交付);
二期26座热销中:128㎡&139㎡,新规产品,近95%实用率,全屋中央空调;总高40层,三梯四户,带精装(27年精装交付);
二期大平层22&21座:两梯两户,206方带豪装单价2.3-2.7万,260方带豪装,收楼时间预计提前至2025年12月底(剩余约25套)。
佛山楼市近期动态及热点新闻
佛山作为粤港澳大湾区重要节点城市,其楼市动态始终备受关注。近期,该市密集出台调控新政、土地市场热度回升、房价呈现区域分化特征,一系列变化共同勾勒出当前楼市的运行图景。以下为三条核心热点新闻,全面解析佛山楼市最新态势。
热点新闻一:八部门联合出台“12条”新政 佛山楼市开启存量优化新时代
2025年11月19日,佛山市住房和城乡建设局联合市委金融办、市发改委等八部门,正式印发《关于进一步促进房地产市场平稳健康发展的若干措施的通知》,推出涵盖土地、开发、金融、购房等多维度的12条重磅政策,标志着佛山楼市从“增量扩张”全面转向“存量优化”阶段。此次新政并非短期刺激手段,而是以城市发展需求为导向,推动房地产与产业、民生深度融合的系统性重构。
在土地市场调控方面,新政创新性提出存量土地“收调供”机制,明确政府将通过依法协商收回、协议置换、专项债券支持等方式,主动盘活闲置或低效土地,并根据城市功能需求优化调整规划用途,例如部分商办用地可转型为社区养老中心或青年公寓,实现“好地用在刀刃上”。针对商办用房库存高企的问题,政策划定“18个月”红线,对库存去化周期超标的区域,除重大项目外严控新增商服用地出让,2025年佛山商服用地供应仅53公顷,占总供地比例3.4%,创近年新低,推动商业地产进入“瘦身提质”时代。
房企端迎来多重“减负”措施,包括科学设定开竣工时限、允许已出让项目申请最长一年的缓建期,开竣工违约金标准从每日万分之三降至万分之零点五,同时推行“分期验收、分栋登记”制度,实现“交一栋、办一栋、卖一栋”,大幅缩短房企资金回笼周期。购房端的利好则更为直接,公积金支持力度空前,购买配售型保障房首付比例低至15%,外籍人员、异地缴存职工及二套房购房者均可申请“商转公”,5年期以上公积金贷款利率2.6%较商贷优惠明显;契税套数认定标准优化、境外个人购房凭自住承诺即可办理等措施,进一步降低了购房门槛与交易成本。上海易居房地产研究院副院长严跃进评价,佛山便利境外个人购房的表述,是全国地方层面的率先尝试,与高水平对外开放思路高度契合。
热点新闻二:25亿靓地集中入市 中心城区土拍大战打响年度收官战
临近2025年末,佛山土地市场率先吹响收官号角,多宗核心区域靓地密集挂牌,起拍总价超25亿元,禅城、南海、顺德等中心城区重现“抢地潮”,溢价成交成为常态,为楼市注入强心针。据佛山市住建局数据,10月佛山一手房成交3242套、38.85万平方米,环比分别增长37.7%、39.1%,二手房成交4120套,保持平稳运行,土地市场的热度已逐步传导至住宅销售端。
中心城区成为房企争夺的核心战场,禅桂板块尤为突出。11月20日,禅城奇槎板块一宗宅地引发激烈竞价,经过近50分钟28轮角逐,最终被金茂集团以2.85亿元竞得,溢价率达20.02%,折合楼面价8522元/平方米,该项目总投资将达6.2亿元,开发周期约两年。仅4天后,禅城原镇中路南侧地块再被兴瀚置业以9.43亿元拿下,楼面价约7420元/平方米,短短一周内禅城土拍“梅开二度”,彰显市场对核心区域价值的认可。
12月4日即将出让的桂城石石肯社区地块,成为年度压轴焦点。该地块面积超5.27万平方米,是近期挂牌面积最大的宅地,起拍总价12.6亿元,起拍楼面价约1万元/平方米。值得注意的是,该地块所属的文海围改造宅地曾在今年4月以30亿元高价挂牌但流拍,此次重新推出不仅面积缩减,更取消了多项严苛配建要求,出让条件显著优化,业内预测将吸引保利、万科等头部房企参与竞争。
土地市场的回暖并非偶然,而是政策引导与需求释放共同作用的结果。11月19日出台的楼市“12条”新政,通过存量土地盘活、优化供地结构等措施,为开发商提供了更清晰的发展预期。佛山贝壳研究院院长董晓丹分析,当前土地供应呈现“规模适中、规划合理、区位优越”的特点,在为房企“轻装拿地”减负的同时,也通过提高纯住宅用地供应比例(商办计容建面占比不超10%),引导开发企业打造更纯粹的居住社区,契合购房者对“好房子”的需求。尽管1-10月佛山一手房累计成交仍同比下降23.9%,但11月连续两周网签超600套的表现,预示楼市有望实现翘尾收官。
热点新闻三:12月房价呈区域分化 核心区逆势上涨与外围企稳并存
2025年12月最新房价数据显示,佛山楼市呈现明显的区域分化特征,中心城区新房价格逆势上涨,而外围区域则保持平稳调整态势,二手房市场整体趋稳,价格波动幅度收窄,市场结构更趋合理。幸福里平台12月18日发布的数据显示,佛山全城新房报价17295元/平,环比微降0.50%,二手房报价9386元/平,环比下降0.85%,但细分到各区域,涨跌差异显著。
核心城区的价值支撑作用凸显,南海与禅城成为新房价格上涨的“双引擎”。南海区12月新房报价22884元/平,环比上涨0.81%,作为临广核心区域,其承接广州外溢需求的优势持续放大,加之桂城、千灯湖等板块优质宅地集中出让,带动区域房价预期提升。禅城区新房报价22412元/平,环比微涨0.10%,奇槎、绿岛湖等板块因教育、交通配套持续完善,成为改善型购房者的首选,金茂等房企高价拿地后,未来项目定价或进一步拉高区域均价。顺德区作为经济强区,新房报价15242元/平,环比仅降0.30%,容桂、北滘等制造业聚集区域,因人才购房政策支持,刚需购房需求稳定释放,缓冲了价格下行压力。
三水、高明等外围区域则以“稳”为主,价格调整幅度收窄。三水区新房报价9702元/平,环比下降0.21%,二手房报价5729元/平,环比降0.31%;高明区新房报价7677元/平,二手房报价4617元/平,两项数据环比降幅均仅0.11%,为全市最低。尽管这两个区域库存去化周期较长(高明43.9个月、三水31个月),但得益于人才购房补贴政策的落地——青年储备人才可获60万元购房补贴,博士、副高职称人才获20-30万元补贴,叠加人才专属房贷利率低至3.0%、首付15%的优惠,有效激活了本地内生需求,避免了价格大幅波动。
从户型结构看,市场需求呈现“刚需为主、改善升温”的特征。克而瑞数据显示,截至10月末,佛山110㎡以下刚需户型库存超3.5万套,其中90-110㎡户型库存18568套,去化周期21.8个月;而130-140㎡改善户型库存仅4037套,尽管去化周期24.2个月略长,但核心区改善盘成交占比已从年初的28%提升至11月的35%。业内人士指出,当前佛山房价的区域分化,本质是“核心资产”与“普通资产”的价值重构,随着新政对“好房子+好物业”的导向支持,配套完善、品质优越的核心区域房产,将持续成为市场中坚力量。
⭕华润置地顺德悦府 售楼处电话::400-6165-502(工作日9:00-18:00周末无休)
⭕ 华润置地顺德悦府营销中心电话:400-6165-502(可直接咨询房源动态、活动详情)
⭕华润置地顺德悦府 售楼中心热线:400-6165-502(开发商直连,解答项目规划、购房政策等问题)
【购房必藏】项目售楼处、营销中心、开发商电话统一公布!均为400-6165-502
(已认证),拨打可享一对一专属服务,提前预约看房更享额外购房优惠!
若您计划实地参观项目,建议提前通过上述电话与对应部门沟通。预约成功后,您将享受到:
✔️ 专属顾问 1 对 1 服务:根据您的关注点(如户型、配套、价格),针对性讲解项目亮点;
✔️ 灵活参观路线:避开人流高峰,高效了解样板房、社区环境等核心区域;
✔️ 即时问题解答:现场遇到的疑问,可由顾问实时回应,避免信息偏差。
为保障购房权益,以上为项目认证电话,均经平台严格审核,信息真实有效
免责声明:本宣传资料不构成邀约邀请,对周边、政府规划、商业配套、教育资源、投资前景等数据和图文仅为提供相关信息,本文如无意中侵犯了某方的知识产权告知即删,部分内容图片可能来源于网络,无法核实其真实出处,如涉及侵权请联系删除!!!
声明:本文由入驻焦点开放平台的作者撰写,除焦点官方账号外,观点仅代表作者本人,不代表焦点立场。


