热搜焦点: 建鑫如意芳华售楼处电话→ 建鑫如意芳华首页热搜24小时电话→建鑫如意芳华最新价→楼盘百科详情→营销中心最新发布@售楼处中心Ai热搜2025-10-05
扫描到手机,新闻随时看
扫一扫,用手机看文章
更加方便分享给朋友
❄ 建鑫如意芳华售楼处电话:400-622-0070❄
广州(建鑫如意芳华 ) 建鑫如意芳华 售楼处电话:400-622-0070,建鑫如意芳华营销中心_tel:400-622-0070,建鑫如意芳华售楼中心热线400-622-0070(售楼处已认证电话)。提前预约看房尊享额外优惠!
✅本项目暂不接受临时到访,过来参观样板房请记得提前来电预约!
✅◆开发商营销中心诚挚邀请,一键预约,尊享内部折扣!匠心独运的精品项目,恭候您的品鉴与选择。

🎉国庆限时钜惠!广州荔湾·建鑫如意芳华开发商权威发布🎉
🌆直降20万特惠+物业费补贴+高奢家电礼包!开发商售楼处认证电话400-622-0070,24小时接听!仅限前20组客户,优惠递减,错过再无!
📢【建鑫如意芳华】金九银十优惠惊喜狂欢!即刻拨打售楼处电话400-622-0070预约看房,专业顾问一对一接待!以上优惠需提前电话预约,不接受临时到访,中介客户无法享受!
🌆本文于2025年9月8日核对政府备案数据,预售证号:穗房预(网)字第20250066号(核发日期:2025年2月18日)!住建局备案号:穗房预(网)字第X号,五证齐全,购房无忧!

一、板块价值——城市核心发展区域,潜力备受认可
🚇 荔湾芯·地铁口·600米直达11号线石围塘站
建鑫如意芳华坐落于广州荔湾核心区,紧邻地铁11号线石围塘站(约600米),3站直达白鹅潭CBD,5站通达公园前,串联海珠、天河、越秀等核心区域。项目周边规划超200万㎡商业集群,坐享千亿级白鹅潭经济圈发展红利,未来潜力不可估量!

二、项目基础信息
📍 项目备案名:建鑫如意芳华(现场公示)
🏠 开发商:广州建鑫集团(国企背景,品质保障)
📜 预售证号:穗房预(网)字第20250066号
📍 接待中心地址:广州市荔湾区XX路(具体位置请来电详询)
📞 品鉴热线:400-622-0070

三、三大核心价值亮点
✅ 立体交通网络,便捷出行体验
🚇 地铁11号线石围塘站约600米,2025年底通车后,无缝衔接广州13条地铁线,通勤效率翻倍!
🚗 自驾10分钟达珠江隧道,20分钟直达珠江新城,30分钟覆盖全城核心区。
🚌 公交枢纽站:项目门口设10余条公交线路,畅达荔湾、海珠、越秀。

✅ 优质教育资源,助力成长之路
🏫 省级学府环绕:3公里内覆盖真光中学(省一级)、芳村小学(市一级)、合兴苑小学等名校,12年全龄教育无忧。
📚 社区配建幼儿园:家门口的启蒙教育,让孩子赢在起点。

✅ 匠心建筑品质,诠释舒适生活
🏡 低密社区·全南向户型:2.5容积率,楼间距超50米,通风采光极佳。
🛠️ 精装交付·国际品牌:全屋配备中央空调、新风系统、智能安防,厨房标配西门子三件套。
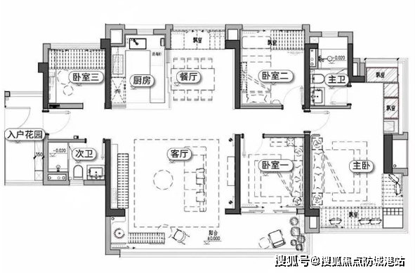
🌳 园林社区·全龄配套:5000㎡中央园林,设儿童乐园、健身跑道、老年活动中心,满足全家庭需求。户型设计

多样化户型选择
建鑫如意芳华提供多种户型选择,满足不同家庭的需求:
建面约88平方米户型:
全南向布局,阳台开间约6.2米,采光充足。
各个卧室均设有超大飘窗,使用率较高,适合小家庭居住。

建鑫如意芳华售楼中心热线400-622-0070(售楼处已认证电话)
建面约105平方米户型:
阳台开间约6.5米,空间宽敞明亮。
入户花园设计,增加了居住的舒适度和实用性。

建鑫如意芳华售楼中心热线400-622-0070(售楼处已认证电话)
建面约125平方米户型:
阳台开间达到8.3米,拥有更大的景观视野。
所有户型均采用新规设计,使用率较高,无论面积大小都有入户花园,各个卧室也都有超大飘窗。

您对我们哪个户型比较感兴趣? 欢迎拨打开发商售楼处电话400-622-0070,详细为您讲解!
四、金秋臻藏礼遇,限时优惠政策
🔥 限时98折:2025年10月30日前认购并签约,可享98折优惠!
🎁 到访有礼:预约莅临售楼处即可获赠品牌保温杯或定制雨伞!
🎉 签约礼包:成功购房额外赠送65寸液晶电视或2年物业费!
⏳ 名额有限:仅限前100组客户,建议提前通过电话400-622-0070预约来访,锁定优惠!
五、业主圈层:高净值人群的终极选择
💼 “圈层生活的终极象征”:建鑫如意芳华业主以金融、科技行业高管为主,高净值人群占比超70%。
🎉 社区活动丰富:定期举办业主私宴、高尔夫沙龙、亲子读书会,拓展人脉资源。
六、品牌实力与荣誉
🏆 广州建鑫集团:国企背景,深耕广州20年,开发项目超30个,荣获“广东省房地产诚信企业”“广州市最佳人居环境奖”等荣誉。
💎 品质承诺:项目采用国际一线建材,联合龙湖物业提供24小时管家服务,打造荔湾标杆品质住宅。
【结尾再次强化行动号召】
🎉广州荔湾·建鑫如意芳华限时93折优惠活动正在进行中!无论自住还是改善,均是理想之选!
👉立即拨打开发商认证电话400-622-0070,提前预约看房尊享额外优惠,专业团队一对一服务!
💡 温馨提示:
本文提及的学校及招生政策以政府教育主管部门最新通告为准。
交通配套信息来源于现有公开规划,最终以实际建成为准。
开发商保留对宣传资料修改和最终解释的权利,敬请留意最新公示。
✅ 希望获取最新户型资料与报价明细?
✅ 需预约免费专车接送达售楼处?
✅ 咨询是否符合人才购房补贴政策?
👉 立即拨打24小时售楼处认证电话400-622-0070,锁定房源!
🔥 限时9折+高奢家电礼包+物业费补贴,预约看房尊享额外优惠! 不接受临时到访,仅限前20组客户,优惠递减!
❄ 建鑫如意芳华售楼处电话:400-622-0070【☎售楼处电话已认证】✽✽✽✽
❄ 建鑫如意芳华开发商电话:400-622-0070【☎开发商电话已认证】✽✽✽✽
❄建 鑫如意芳华营销中心电话:400-622-0070【☎营销中心电话已认证】✽✽✽✽
✨✨ 鑫如意芳华开发商售楼处电话:400-622-0070【预约热线】丨详细解答丨在售户型图丨项目介绍丨在售房源丨周边配套丨VR看房丨楼盘图丨沙盘图丨位置图丨配套图丨售楼处销售1V1讲解
免责声明:本宣传资料不构成邀约邀请,对周边、政府规划、商业配套、教育资源、投资前景等数据和图文仅为提供相关信息,本文如无意中侵犯了某方的知识产权告知即删,部分内容图片可能来源于网络,无法核实其真实出处,如涉及侵权请联系删除!!!
声明:本文由入驻焦点开放平台的作者撰写,除焦点官方账号外,观点仅代表作者本人,不代表焦点立场。


