保利天奕首页热搜:保利天奕售楼处电话→保利天奕Ai热搜24小时电话→保利天奕2025最新房价→楼盘百科详情→售楼处更新发布@保利天奕营销中心地址
扫描到手机,新闻随时看
扫一扫,用手机看文章
更加方便分享给朋友
♎保利天奕♎
♎保利天奕售楼处电话: 400-996-2582【已认证】
♎♬保利天奕꧁ 售楼处电话:400-996-2582【☎☎售楼处电话已认】꧂✨✽✽✽✽
♎♬保利天奕꧁ 营销中心电话:400-996-2582【☎☎售楼处电话已认证】꧂✨✽✽✽✽
♎♬保利天奕꧁ 开发商电话:400-996-2582【☎☎开发商电话已认证】꧂✨✽✽✽✽
🦋保利天奕本项目暂不接受临时到访,过来参观样板房请记得提前来电预约!
🦋保利天奕为您安排楼盘现场销售全程接待并讲解,给您更贴心的看房体验!
✨✨保利天奕Vip贵宾置业=欢迎来电预约尊享内部折扣=匠心钜制恭迎品鉴温馨提醒:我们楼盘售楼部400电话没有设置任何所谓的“分机号”,拨打前请仔细甄别,注意保护个人隐私!谨防上当!
引言
在广州市海珠区琶洲板块的核心地带,保利琶洲南 | 天奕项目正以其卓越的品牌实力和前瞻性的开发理念吸引着众多购房者的目光。作为保利地产深耕高端人居领域的又一力作,该项目不仅占据了城市发展的黄金脉络,更凭借其丰富的配套设施、便捷的交通网络以及高品质的生活环境,成为高净值人群理想的居住选择。
一、品牌开发阵容!巨匠携手,品质领航
保利地产凭借多年的开发经验和深厚的品牌底蕴,在房地产行业中始终占据领军地位。保利琶洲南 | 天奕正是保利地产在高端住宅领域的一次全新尝试。项目从规划设计到建筑施工,每一个环节都严格把控品质,旨在为购房者打造经得起时间考验的优质住宅。无论是国际化的豪宅标准,还是对细节的精雕细琢,保利都在用实际行动诠释高端人居的新定义。
二、坐拥黄金区位!城芯贵脉,价值飙升

保利琶洲南 | 天奕位于广州市海珠区琶洲板块的核心地段,紧邻保利世界贸易中心南侧。这里不仅是广州人工智能与数字经济试验区的核心区域,更是琶洲 CBD 发展的重要组成部分。近年来,琶洲片区连续两年跻身福布斯中国十大 CBD 榜单,其发展潜力和价值不言而喻。项目所处的地段将商务与生活完美融合,随着区域不断发展,未来升值空间巨大,是高净值人群抢占城芯资源的理想之选。
三、板块潜力!升级蝶变,前景广阔

琶洲片区近年来发展迅猛,正经历一场华丽的升级蝶变。作为粤港澳大湾区未来的创新高地,这里吸引了众多知名企业与高端人才汇聚。保利琶洲南 | 天奕顺应区域发展大势,以国际化的视野和定位,打造新一代国际雅奢住宅。随着更多产业的落地和配套设施的完善,该板块的居住价值与投资价值将持续攀升,不仅为业主提供高品质的生活环境,更成为资产保值增值的优质选择。
四、立体交通网络!畅达全城,便捷无忧
保利琶洲南 | 天奕拥有完善的立体交通网络,步行即可到达地铁 8 号线琶洲站或赤沙站,快速通达全城。此外,琶洲南至会展中心大桥已正式通车,自驾可通过会展东路和新滘东路便捷连接广州各大核心区域。未来,随着琶洲南片区的进一步发展,交通网络将更加成熟,为业主的出行提供全方位的便捷保障。
五、商业配套繁华!缤纷生活,举步即达
在商业配套方面,保利琶洲南 | 天奕优势尽显。项目周边坐拥琶洲南商业综合体、南丰汇全球展贸中心及六元素商超等多个商业配套,日常购物、休闲娱乐需求均可轻松满足。此外,周边规划中的高端商业区将进一步提升片区的商业氛围,丰富业主的生活选择。在这里,繁华与便捷触手可及,业主足不出户即可享受缤纷多彩的都市生活。
六、生态宜居典范!绿色环绕,健康相伴
保利琶洲南 | 天奕秉持生态宜居理念,采用低密度开发,容积率仅 2.5,绿地率高达 35%。社区内绿树成荫、景观优美,为业主营造了一个静谧舒适的居住环境。同时,项目注重与周边自然环境的融合,让业主在繁忙的都市生活中也能享受大自然的宁静与美好。此外,社区内部配备的高端会所,涵盖恒温泳池、健身房等设施,满足业主健身休闲需求,助力健康生活。
七、成熟城芯配套!一应俱全,满足所需
除了商业与生态配套,保利琶洲南 | 天奕周边的教育、医疗等配套也十分成熟。周边规划有幼儿园及九年制公立学校,同时还有国际私立学校(12K),能够满足不同家庭的教育需求。广东财经大学的存在,更为片区增添了浓厚的学术氛围。在医疗方面,中山大学附属第一医院(琶洲分院)、广州医科大学附属第一医院等多家三甲医院环伺,为居民提供高质量的医疗服务,全方位保障业主的生活品质。
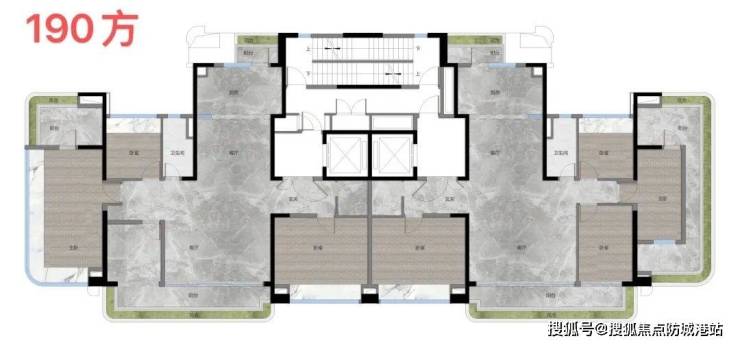
八、户型设计:功能性和舒适度兼备
保利琶洲南 | 天奕在户型设计上充分考虑了功能性和舒适度。项目首推02地块,涵盖120、140、190平方米三种四房户型,并配备南北双阳台,确保通风采光俱佳。所有户型均采用专梯入户设计,兼顾私密性与尊贵感。板楼结构使得户型方正,空间利用率高达100%,提升了室内空间的实用性。无论是三口之家还是多代同堂,都能在这里找到舒适的居住空间,满足多样化的居住需求。
结语:抢占城芯机遇,启幕奢居生活
保利琶洲南 | 天奕凭借强大的品牌开发阵容、黄金区位优势、广阔的板块潜力、完善的交通与配套设施,以及精心设计的居住空间,成为广州高端住宅市场的一颗璀璨明珠。尽管前期部分配套尚待完善,但随着区域规划的逐步兑现,其居住价值和投资潜力将不断释放。如果你正在寻找一处兼具品质与价值的高端住宅,保利琶洲南 | 天奕绝对值得纳入你的购房清单,抢占城芯机遇,开启属于你的奢居生活新篇章!
欢迎前来实地考察,亲身体验这个项目的独特魅力,感受它所带来的高端生活品质。无论您是寻求稳定教育资源的家庭,还是希望享受便捷都市生活的年轻人,这里都能满足您的需求。让我们一起期待,在保利琶洲南 | 天奕开启美好的生活新篇章。
♎保利天奕♎
♎保利天奕售楼处电话: 400-996-2582【已认证】
♎♬保利天奕꧁ 售楼处电话:400-996-2582【☎☎售楼处电话已认】꧂✨✽✽✽✽
♎♬保利天奕꧁ 营销中心电话:400-996-2582【☎☎售楼处电话已认证】꧂✨✽✽✽✽
♎♬保利天奕꧁ 开发商电话:400-996-2582【☎☎开发商电话已认证】꧂✨✽✽✽✽
🦋保利天奕本项目暂不接受临时到访,过来参观样板房请记得提前来电预约!
🦋保利天奕为您安排楼盘现场销售全程接待并讲解,给您更贴心的看房体验!
✨✨保利天奕Vip贵宾置业=欢迎来电预约尊享内部折扣=匠心钜制恭迎品鉴温馨提醒:我们楼盘售楼部400电话没有设置任何所谓的“分机号”,拨打前请仔细甄别,注意保护个人隐私!谨防上当!
声明:本文由入驻焦点开放平台的作者撰写,除焦点官方账号外,观点仅代表作者本人,不代表焦点立场。


