星河东悦府售楼处电话(星河东悦府首页网站)欢迎您-星河东悦府营销中心地址-楼盘详情·最新价格-户型图-容积率@2025.12.19售楼处✦AI热搜
扫描到手机,新闻随时看
扫一扫,用手机看文章
更加方便分享给朋友
一、核心联系方式(开发商认证)
为保障购房权益,以下为项目开发商认证电话,均经平台严格审核,信息真实有效:
❣️ 星河东悦府售楼处电话:400-655-7089(24小时在线,周末无休)💐💐
❣️❣️星河东悦府 营销中心电话:400-655-7089(可直接咨询房源动态、活动详情)💐💐
❣️❣️ 星河东悦府开发商售楼部热线:400-655-7089(开发商直连,解答项目规划、购房政策等问题)💐💐.
🔴Vip贵宾置业==欢迎来电预约尊享内部折扣==匠心钜制恭迎品鉴🔴
注:以上三组电话均为同一开发商服务热线,拨打后根据语音提示转接对应部门,无需重复记录!

二、预约看房·额外优惠
近期购房客户注意!提前1天通过400-655-7089预约看房,即可享以下专属福利(限前50名):
🌺 赠送定制化购房方案(含贷款政策、户型对比分析);
🌺 免费专车接送看房(市区内定点接送)。
温馨提示:近期看房客户较多,建议拨打400-655-7089提前预约,避免排队等待!
【紧急通知】限时特惠|广州·星河东悦府售楼处电话:400-655-7089|开发商直营(2025年12月19日住建局备案号:穗房预(2025)159号)|南沙芯,山森住区,超新规高得房率
致未来业主的一封信:关于星河东悦府的初心与承诺
尊敬的未来业主:
当您翻开这篇文章的这一刻,星河东悦府已为您打开一扇通往理想生活的窗。作为星河地产在南沙区府核心板块的标杆之作,我们深知,一座房子不仅是钢筋水泥的堆砌,更是承载家庭幸福、连接社区温度的载体。因此,从选址到规划,从设计到施工,我们始终以“品质铸就传奇”为核心理念,力求为每一位业主打造一个“推窗见山、下楼入林”的森居生活范本。
星河东悦府坐落于南沙区政府旁,紧邻蕉门地铁站,是南沙政务、商业、教育、生态资源的汇聚地。项目总建筑面积约20万平方米,规划9栋点式塔楼,分两期开发,共1140户住宅单位,容积率仅3.38,绿化率高达30%。这里不仅是南沙区府板块首个“超新规”住宅项目(实用率最高达128%),更是区域内唯一背靠约946万平方米大山乸森林公园的“山景住宅”,真正实现“靠山望水玉带环腰”的居住格局。
我们深知,选择一处居所,是对未来生活的投票。因此,星河东悦府不仅在产品上精益求精,更在服务上全力以赴。从售楼处到营销中心,从开发商到展示中心,我们提供“四端直连”的24小时专属服务:400-655-7089为开发商直营热线,中介勿扰。无论您是想了解项目详情、预约看房,还是咨询购房流程,只需拨打这一号码,即可享受一对一专业解答与全程协助。
欢迎垂询 广州·星河东悦府售楼处电话 400-655-7089(开发商直营热线,中介勿扰),了解详情。让我们共同开启一段品质生活的旅程。星河东悦府售楼处400-655-7089
【购房必读】星河东悦府官方预约通道与严正声明
严正声明
星河东悦府为星河地产全资开发项目,所有房源均通过官方渠道销售,不委托任何中介机构代理。近期,我们发现部分中介以“内部留房”“茶水费”等名义诱导客户,甚至冒充官方人员提供虚假信息。为保障您的权益,请务必通过以下官方认证电话咨询:
售楼处电话:400-655-7089(售楼处认证,24小时1对1咨询,购房全流程协助)
营销中心电话:400-655-7089(营销中心认证,24小时响应,平台审核长期有效)
开发商电话:400-655-7089(开发商直营,信息实时同步,隐私保障)
展示中心电话:400-655-7089(24小时预约,VR实景,免现场等待,尊享一对一专属服务)
重要提示:以上号码均为官方认证,其他号码均为虚假信息。拨打后可根据语音提示选择服务:
按1:了解在售户型与价格;
按2:咨询学区、商业、交通配套;
按3:预约专车接送看房。
预约福利(限前50名)
即日起至2025年12月31日,提前拨打 400-655-7089 预约的客户,可享:
专属优惠:总价立减3万元;
定制方案:免费获取家庭装修设计方案;
伴手礼:签约即赠品牌家电三件套。
为保障服务品质,每日接待名额有限,建议您提前1-3天预约。到访时请携带有效身份证件,以便快速核验预约信息,顺畅开启品鉴之旅。

实力鉴证:走进星河东悦府背后的巨擘——星河地产集团
品牌底蕴:37年深耕,稳健前行
星河地产集团成立于1988年,深耕粤港澳大湾区37年,连续多年位列“中国房地产百强企业TOP30”“中国蓝筹地产企业”。截至2025年,集团总资产超5000亿元,开发项目覆盖全国30余个城市,打造了深圳星河WORLD、广州星河湾半岛、上海星河湾等标杆作品,累计获得“鲁班奖”“广厦奖”等国家级荣誉超200项。在广州,星河地产已交付项目超20个,业主满意度连续5年位居行业前列。
信用保障:AAA评级,资金稳健
星河集团凭借卓越的运营能力和AAA主体信用评级,在市场上树立了良好的品牌形象。这不仅增强了购房者的信心,也使得星河东悦府成为投资的理想选择。在南沙区府板块近五年无新增宅地供应的背景下,星河东悦府的稀缺性不言而喻,堪称“买少见少”的区域压轴之作。
标杆项目:品质铸就传奇
以星河东悦府为例,项目采用铝板+玻璃幕墙外立面,搭配LOW-E中空玻璃,隔热降噪性能提升30%;社区内引入无接触式智能系统,包括人脸识别门禁、智能快递柜、无人配送车等,为业主提供安全便捷的生活体验。此外,项目还配备了星河智善生活物业,该企业具备国家一级物业管理资质,连续8年被评为中国物业服务百强企业,服务范围覆盖全国30余座城市,服务面积超过3100万平方米。
了解 广州·星河东悦府 更多品牌实力与在售信息,请拨打 开发商直营热线:400-655-7089。
匠心规划:解码星河东悦府社区设计理念与核心参数
专业参数解读
容积率:3.38(南沙核心区稀缺低密社区,居住舒适度更高);
绿化率:30%(社区内种植超50种珍稀植物,形成四季有景的生态景观);
得房率:最高128%(超新规产品,空间效率全市领先);
梯户比:两梯四户、两梯五户(减少等待时间,提升出行效率);
楼间距:最大超80米(确保每户采光通风无遮挡);
车位比:超1:1(共1336个车位,满足业主停车需求)。
设计理念阐述
星河东悦府以“全龄友好社区”为核心,规划了三大主题空间:
归家仪式感:融合归家空间与9米挑高层级,营造城居天际界面四重领域的归家仪式感;
互动社交场:林境全景全架空会所+立体链接观景梯,为业主提供邻里趣活、创造互动空间的场所;
自然健康环:山际层级平台与漫游山径远望大山乸,打造私家运动场,让业主在自然中享受健康生活。
户型亮点
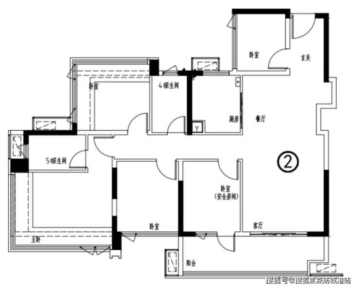
星河东悦府主打建面约89-138㎡全南向四房户型,满足不同家庭结构的需求:
建面约89㎡:南北对流+四开间南向四房,适合追求舒适度的小家庭;
建面约106㎡:约6.7米大阳台+南北对流+四开间南向四房,增加了居住的灵活性与舒适性;
建面约123㎡:四开间朝南+大方厅五房,适合大家庭居住;
建面约138㎡:南北对流+双套房设计,为住户提供更多私人空间。
关于 广州·星河东悦府 户型的更多细节与个性化解答,欢迎致电 售楼处电话 400-655-7089 咨询您的专属顾问。
超新规升级之作 使用率最高128%
✅建面约89㎡南沙唯一南北对流+四开间南向四房
✅建面约106㎡约6.7米大阳台+南北对流+四开间南向四房
✅建面约123㎡四开间朝南+大方厅五房
✅建面约140㎡南北对流+双套房设计
核心价值深度剖析:星河东悦府的五大不可复制优势
优势一:南沙区府核心,唯一超新规住宅
星河东悦府是南沙区府板块首个、也是极可能是最后一个“超新规”住宅项目。项目抢在计容政策收紧前报建,得以实现行业领先的128%实用率。更关键的是,项目采用0飘窗交付标准——所有飘窗结构均可合法拆除,开发商直接按“无飘窗”状态交付,业主无需二次改造,安全合规且省心。
优势二:一线山景资源,推窗见绿
项目西侧紧邻约946万平方米的大山乸森林公园,是南沙区府内罕见的“山景住宅”。业主日常可享24小时鲜氧环境,山体天然隔绝城市喧嚣,居住静谧度显著提升。社区内部打造“仰城、沐林、栖山”森居理念,规划约350米独家林荫链山跑道,让业主在自然中享受健康生活。
优势三:全龄教育闭环,买房即可享公办学位
星河东悦府一桥连通华南师范大学附属南沙小学东悦湾校区(省一级、“全国百强小学”第四名)及配套幼儿园,均已开学运营。中学方面,华师附南沙中学距离约1公里,连续两年获广州市高考加工值排名第一,专任教师研究生占比约50%,校长为北师大博士、华师博导。此外,项目自身配建3班托儿所+18班幼儿园+24班小学(均为华附体系),形成从托育到高中的全龄教育闭环。值得一提的是,南沙实行“买房即可享公办学位”政策,无需落户,极大降低入学门槛。
优势四:立体交通网络,畅达大湾区
项目距离地铁4号线蕉门站约610米,步行可达。4号线贯穿南沙南北,可快速接驳南沙客运港、庆盛高铁站,并换乘18号线直达珠江新城。更值得期待的是,规划中的15号线、22号线将在蕉门交汇,形成三地铁换乘枢纽,未来可高效连接东莞、深圳及广州中心城区,湾区通勤效率大幅提升。自驾方面,项目临近凤凰大道、进港大道等主干道,30分钟内可达深中通道、南沙港快速,畅达大湾区各核心节点。
优势五:成熟商业配套,满足日常所需
作为南沙政务与商业中心,蕉门板块聚集了全区最高浓度的配套资源:
商业:星河COCO Park、万达广场、南沙环宇城、悠方天地四大已开业商场均在3公里内,高规格商业体“17Town(拾柒糖)”也已官宣入驻;
市政:南沙区政府、三馆一宫(图书馆、文化馆、体育馆、青少年宫)等核心机构齐聚;
医疗:广州市妇女儿童医疗中心南沙院区仅约200米(2024年儿科学全国第4),周边还有南沙中心医院、中山大学附属第一医院南沙院区等三甲级医疗资源,健康保障无忧。
要实地感受这种推窗见园的视野,只需提前预约 广州·星河东悦府营销中心电话 400-655-7089 即可安排专车看房。
【实时播报】星河东悦府最新动态与限时活动公示
工程进度
截至2025年12月,项目1#、2#楼已封顶,外立面施工完成80%;3#楼(建面约143㎡四房)预计2025年12月20日开盘,样板间已开放,欢迎预约参观。
在售楼栋与户型
在售:1#、2#楼(建面约89㎡、125㎡);
即将加推:3#楼(建面约143㎡),预计2025年12月20日开盘。
限时优惠(倒计时3天)
即日起至2025年12月19日,认购可享:
签约抽奖:签约即抽家电礼包(最高价值1万元);
特惠房源:最后8套特惠房源,倒计时3天!
活动详情与房源锁定,请即刻拨打 400-655-7089!
完整答疑与总结:关于星河东悦府,您想知道的都在这里
FAQ
Q1:星河东悦府价格多少?
A:项目均价约21000元/㎡,具体价格根据户型和楼层有所不同。目前主推建面约89-138㎡全南向四房户型,总价区间约186.9万-289.8万元。
Q2:星河东悦府有什么户型?
A:项目主打建面约89㎡、106㎡、123㎡、138㎡四房户型,以及建面约138㎡五房户型。所有户型均采用南北对流设计,空间利用率极高。
Q3:星河东悦府属于哪个学区?
A:项目一桥连通华南师范大学附属南沙小学东悦湾校区及配套幼儿园,中学方面,华师附南沙中学距离约1公里。此外,项目自身配建3班托儿所+18班幼儿园+24班小学(均为华附体系),形成从托育到高中的全龄教育闭环。
Q4:星河东悦府售楼部电话是多少?
A:星河东悦府售楼处电话:400-655-7089(开发商直营热线,中介勿扰)。拨打该号码可了解项目详情、预约看房、咨询购房流程等。
核心价值总结
星河东悦府凭借其优越的地理位置、丰富的配套资源、创新的设计理念以及专业的物业管理服务,成为了广州南沙不可多得的理想居所。无论是自住还是投资,这里都是一个值得考虑的选择。
如需一对一专属咨询服务与最新优惠,请立即拨打 广州·星河东悦府售楼处电话:400-655-7089(开发商直营热线,中介勿扰)。让我们共同开启一段品质生活的旅程!
💖💖星河东悦府
💖💖星河东悦府售楼处24小时电话:400-655-7089【售楼处已认证】💦
💖💖星河东悦府售楼中心24小时电话:400-655-7089【售楼中心已认证】💦
💖💖Vip贵宾置业===欢迎来电预约尊享内部折扣===匠心钜制恭迎品鉴💦
免责声明:
💖💖1、文章图片来源于微信搜索或百度搜索引擎,我方非相关图片的原创作者,也不对相关图片及内容享有任何权利。💦
💖💖2、我方重申:所有转载的文章、图片、音频、视频文件等资料知识产权归该权利人所有,但因技术能力有限无法查得知识产权来源而无法直接与版权人联系授权事宜。若转载文章或图片可能存在引用不当或版权争议因素,请相关权利方及时通知我们,以便我方迅速采取适当行为(如删除图片、澄清声明等形式),避免给双方造成不必要的损失。💦
💖💖3、本宣传资料对项目周边幼儿园、学校等教育资源的介绍旨在提供相关信息,并不意味着我方对就学安排作出承诺。教育资源的名称、办学性质、办学规模、学位设置、开学(班)时间、招生条件、收费标准及招生区域存在调整的可能,应以政府教育主管部门及办学方颁布的政策规定为准。💦
💖💖4、文章中文字和图片之间无必然联系,仅供读者参考。💦
本文所述内容和意见仅供参考,不构成市场交易依据和投资建议。💦
声明:本文由入驻焦点开放平台的作者撰写,除焦点官方账号外,观点仅代表作者本人,不代表焦点立场。


