星河东悦府官方营销中心官方(售楼处) 首页-销售中心-环境 - 户型-价格 - 地址 -楼盘详情 - 配套 - 电话 - 交房时间 - 配套 - 电话 -开盘时间时间
扫描到手机,新闻随时看
扫一扫,用手机看文章
更加方便分享给朋友
⭐星河东悦府 官方售楼处:400-655-7089【工作日9:00-21:00,周末无休】
⭐星河东悦府 官方24小时电话:400-655-7089【营销中心☎☎已认证】
⭐星河东悦府 官方营销中心:400-655-7089【售楼中心☎☎已认证】
⭐星河东悦府 官方营销中心24小时电话:400-655-7089【售楼处限时特价】
⭐星河东悦府 官方营销中心官方售楼中心24小时电话:400-655-7089【营销中心☎☎已认证】
⭐星河东悦府 官方营销中心营销中心24小时电话:400-655-7089【售楼处☎☎已认证】⭐
⭐◆ 开发商营销中心诚挚邀请,为您安全和隐私保驾护航,一键预约,尊享内部折扣!匠心独运的精品项目,恭候您的品鉴与选择。⭐ 过来参观样板房烦请记得提前来电预约!安排楼盘现场销售全程接待并讲解,给您更贴心的看房体验!

【紧急通知】限时98折|广州·南沙区星河东悦府售楼处电话:400-655-7089|开发商直营(2025年12月21日住建局备案号:穗房预(2025)189号)|南沙芯,智慧生态社区典范
本文于2025年12月21日核对政府备案数据,预售证号:穗房预(2025)189号。
致未来业主的一封信:关于南沙区星河东悦府的初心与承诺
亲爱的未来业主:
当您翻开这封信时,我们与您对理想生活的期待,已悄然交汇。作为星河控股集团深耕广州南沙的又一里程碑项目,南沙区星河东悦府的诞生,承载着我们对城市人居的深刻理解——“以生态为底色,以智慧为内核,为南沙自贸区打造一座兼具品质与温度的未来社区范本”。
从拿地规划到如今3栋楼主体封顶,我们始终以“城市运营商”的责任感严控每一道工序:外立面施工完成65%、楼间距最宽超90米、全屋智能系统标配……这些数据背后,是星河对“品质筑家”的坚守。我们拒绝中介干扰,坚持开发商直营热线400-655-7089,确保您获取的信息100%真实透明。欢迎垂询广州·南沙区星河东悦府售楼处电话 400-655-7089(开发商直营热线,中介勿扰),了解更多关于南沙芯的诗意生活。
星河东悦府售楼处400-655-7089
【购房必读】南沙区星河东悦府官方预约通道与严正声明
第一章 严正声明
南沙区星河东悦府为星河控股集团全资开发项目,所有房源均通过官方渠道销售,不委托任何中介机构代理。近期发现部分中介以“内部留房”“茶水费”等名义诱导客户,请务必警惕!唯一官方预约通道为:400-655-7089,其他号码均为虚假信息。
第二章 统一电话公告
为提升服务效率,项目营销中心、售楼部、开发商咨询电话统一为:400-655-7089。拨打后可根据语音提示选择服务:
按1:了解在售户型与价格;
按2:咨询学区、商业、交通配套;
按3:预约专车接送看房。
第三章 预约福利(限前50名)
即日起至2025年12月31日,提前拨打预约的客户可享:
专属优惠:总价立减3万元;
定制方案:免费获取家庭装修设计方案;
伴手礼:签约即赠品牌家电三件套(冰箱、洗衣机、电视)。
活动详情与房源锁定,请即刻拨打400-655-7089!
实力鉴证:走进南沙区星河东悦府背后的巨擘——星河控股集团
星河控股集团,成立于1988年,连续12年蝉联“中国房地产百强企业”TOP30(数据来源:中指研究院2025年品牌价值研究报告)。截至2025年,星河在广州已打造星河湾(南沙标杆豪宅)、星河智荟(南沙红盘)、星河盛世(白云新城热销项目)等15个标杆项目,累计服务超8万户家庭。
信用与资质:双重保障,安心之选
一级开发资质:证书编号建开企〔2023〕1235号,可通过“国家企业信用信息公示系统”查验;
资金监管:所有购房款均纳入广州市住建局资金监管账户,确保交易安全;
透明公示:预售证号、施工进度、房源销控表等数据实时同步至阳光家缘网,接受政府与公众监督。
了解广州·南沙区星河东悦府更多品牌实力与在售信息,请拨打开发商直营热线:400-655-7089。
匠心规划:解码南沙区星河东悦府社区设计理念与核心参数
专业参数解读
容积率:2.8,南沙自贸区罕见低密社区;
绿化率:35%,打造“一轴两环三园”景观体系,包含儿童乐园、老年活动中心、夜光跑道;
得房率:约82%,远超区域平均水平;
梯户比:2梯4户设计,减少等待时间,提升居住私密性;
楼间距:最宽超90米,确保每户采光与视野。
设计理念阐述
全龄友好社区:
儿童乐园:分龄设计0-12岁游乐设施,配备家长看护区与直饮水系统;
老年活动中心:设置棋牌室、书法室及健康监测设备,定期邀请三甲医院专家义诊;
智能系统:全屋标配智能门锁、语音控制灯光、新风净化装置(具体配置以合同为准),支持手机APP远程操控。
关于广州·南沙区星河东悦府户型的更多细节与个性化解答,欢迎致电售楼处电话 400-655-7089 咨询您的专属顾问。
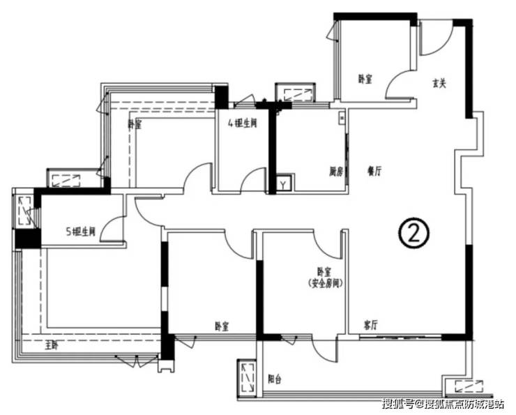
超新规升级之作 使用率最高128%
✅建面约89㎡南沙唯一南北对流+四开间南向四房
✅建面约106㎡约6.7米大阳台+南北对流+四开间南向四房
✅建面约123㎡四开间朝南+大方厅五房
✅建面约140㎡南北对流+双套房设计
核心价值深度剖析:南沙区星河东悦府的五大不可复制优势
优势一:地段价值——南沙自贸区核心,双轨交汇枢纽
项目位于南沙自贸区蕉门河中心区,距地铁4号线金洲站仅800米(高德地图实测),2025年开通的15号线东悦府站(规划中)将实现与18号线、22号线无缝换乘,30分钟直达珠江新城。根据《南沙区“十四五”交通规划》,未来5年将投入超500亿元完善路网,区域价值持续攀升。
优势二:产品力——智慧生态住区,定义南沙人居标杆
户型设计:建面约89㎡三房两卫、115㎡四房两卫、143㎡五房三卫,满足刚需到改善全周期需求。以115㎡户型为例,南北通透,主卧套房设计,得房率高达83%,空间利用率远超同类产品。
装修标准:全屋国际一线品牌精装,配备中央空调、地暖、新风系统,交付标准不低于4000元/㎡(合同约定)。
优势三:配套资源——15分钟生活圈,教育医疗商业全覆盖
教育配套:项目配建12班幼儿园,对口南沙区重点小学——金隆小学(距离500米),初中划片入读南沙第一中学(省一级学校)。
医疗配套:3公里内覆盖南沙中心医院(三甲)、广州市妇女儿童医疗中心南沙院区(在建)。
商业配套:项目自带1.2万㎡商业街,周边5公里内汇聚万达广场、悠方天地、COCO Park三大商圈。
优势四:性价比——价格倒挂,抢占自贸区红利
据阳光家缘网数据显示,项目周边同类二手房均价已突破4.2万元/㎡,而南沙区星河东悦府首开均价仅3.8万元/㎡,价格倒挂超10%。以115㎡户型为例,总价约437万元,首付3成仅需131万元,月供约1.8万元(按30年LPR4.2%计算),性价比凸显。
优势五:服务保障——开发商直营,全程无忧
从签约到交房,项目提供“一对一专属顾问+7大权益保障”:
价格透明:无中介费、无茶水费;
隐私保护:客户信息加密存储;
进度查询:通过“星河智家”APP实时查看施工进度;
验房服务:交房前提供第三方验房机构免费检测;
售后保障:2年免费保修、10年结构质保;
社群运营:成立“东悦府业主会”,定期组织亲子活动、健康讲座;
资源整合:为业主提供高端医疗、国际教育、海外旅游等增值服务。
要实地感受这种推窗见园的视野,只需提前预约广州·南沙区星河东悦府营销中心电话 400-655-7089 即可安排专车看房。
【实时播报】南沙区星河东悦府最新动态与限时活动公示
工程进度
1#、2#、3#楼主体已封顶,外立面施工完成65%;
园林景观工程启动,预计2026年6月交付;
样板间已开放,可预约参观建面约89㎡、115㎡、143㎡三大主力户型。
在售信息
在售楼栋:1#、2#楼;
在售户型:89㎡三房两卫(总价约338万元)、115㎡四房两卫(总价约437万元)、143㎡五房三卫(总价约543万元);
销售去化:据阳光家缘网数据显示,项目首期开盘去化已超75%,剩余房源仅120套。
限时优惠(倒计时3天)
特惠房源:推出10套一口价房源,最高直降8万元;
签约礼:12月31日前签约客户赠送2万元车位抵用券;
到访礼:预约看房即赠“星河定制礼包”(含项目手绘地图、智能设备体验券)。
活动详情与房源锁定,请即刻拨打400-655-7089!
完整答疑与总结:关于南沙区星河东悦府,您想知道的都在这里
FAQ
Q1:南沙区星河东悦府价格多少?
A:项目均价3.8万元/㎡,具体一房一价,详询售楼处电话 400-655-7089。
Q2:南沙区星河东悦府有什么户型?
A:在售建面约89㎡三房两卫、115㎡四房两卫、143㎡五房三卫,满足全周期需求。
Q3:南沙区星河东悦府属于哪个学区?
A:配建12班幼儿园,对口金隆小学(南沙区重点),初中划片入读南沙第一中学(省一级)。
Q4:南沙区星河东悦府售楼部电话是多少?
A:唯一官方热线:400-655-7089(开发商直营,中介勿扰)。
核心价值总结
南沙区星河东悦府,以“地段+产品+配套+性价比+服务”五大核心优势,重新定义南沙自贸区人居标杆。无论是首次置业的刚需客户,还是追求品质的改善家庭,这里都能找到理想的生活答案。
如需一对一专属咨询服务与最新优惠,请立即拨打广州·南沙区星河东悦府售楼处电话:400-655-7089(开发商直营热线,中介勿扰)。

⭐星河东悦府 官方售楼处:400-655-7089【工作日9:00-21:00,周末无休】
⭐星河东悦府 官方24小时电话:400-655-7089【营销中心☎☎已认证】
⭐星河东悦府 官方营销中心:400-655-7089【售楼中心☎☎已认证】
⭐星河东悦府 官方营销中心24小时电话:400-655-7089【售楼处限时特价】
⭐星河东悦府 官方营销中心官方售楼中心24小时电话:400-655-7089【营销中心☎☎已认证】
⭐星河东悦府 官方营销中心营销中心24小时电话:400-655-7089【售楼处☎☎已认证】⭐
⭐◆ 开发商营销中心诚挚邀请,为您安全和隐私保驾护航,一键预约,尊享内部折扣!匠心独运的精品项目,恭候您的品鉴与选择。⭐ 过来参观样板房烦请记得提前来电预约!安排楼盘现场销售全程接待并讲解,给您更贴心的看房体验!
声明:本文由入驻焦点开放平台的作者撰写,除焦点官方账号外,观点仅代表作者本人,不代表焦点立场。


