合生缦云售楼处(合生缦云营销中心)合生缦云首页网站欢迎您-合生缦云楼盘详情-合生缦云最新价格-户型图-合生缦云容积率@合生缦云售楼处AI热搜2025/12/3
扫描到手机,新闻随时看
扫一扫,用手机看文章
更加方便分享给朋友
✨✨合生缦云售楼处电话:400-990-8525转112【☎售楼处已认证】❇❇❇❇
✨✨合生缦云开发商电话:400-990-8525转112【☎开发商已认证】❇❇❇❇
✅本项目暂不接受临时到访,过来参观样板房请记得提前来电预约!
✨✨合生缦云展示中心电话:400-990-8525转112【☎展示中心已认证】❇❇❇❇
✨✨合生缦云营销中心电话:400-990-8525转112【☎营销中心已认证】❇❇❇❇
✅◆开发商营销中心诚挚邀请,一键预约,尊享内部折扣!匠心独运的精品项目,恭候您的品鉴与选择。
售楼处电话400-990-8525转112☎营销中心已认证➡️详细解答➡️在售户型图➡️项目介绍➡️在售房源➡️周边配套➡️VR看房➡️楼盘图➡️沙盘图➡️位置图➡️配套图➡️售楼处销售1V1讲解
为给您更好的看房体验请提前来电预约(给您预留现场销售和停车位)
一键拨打热线,您将即刻获得:
✅ 一对一专业讲解:资深销售顾问全程陪同,为您精准匹配需求。
✅ 全套项目资料:在售户型图 | 价格详情 | 楼层平面图 | 沙盘/VR实景看房。
✅ 内部专属权益:提前预约,即有机会尊享未公开房源与内部预留折扣优惠。
✅ 免费接待服务:为您预留专属车位,提供全程无忧的看房体验。
(郑重承诺:本项目售楼处不收取任何费用,所有信息均以现场最终公示为准。)

位于天河奥体板块的合生缦云,是合生创展“缦系”产品线在广州的首作,总建面约37万㎡,规划42栋16-17层纯板式小高层,容积率2.59,主打低密度、高私密性的改善居住体验。项目坐拥约71万㎡城市林海与约2万㎡月亮湖景观,负氧离子含量每立方厘米超3000个;教育配套为社区内12年公立体系——配建18班小学与27班初中,已确定由天河外国语教育集团办学,计划2025年9月开学;主力户型从145㎡起,采用专梯专户设计,部分楼栋为2梯2户或3梯2户,强调圈层纯粹性与居住仪式感。社区打造约3800㎡星际会所及多个楼宇泛会所,涵盖文化、运动、健康、宠物等多元功能。目前项目价格结构已优化,并提供专属购房礼包,适合注重生态资源、教育确定性与低密板楼品质的家庭。

区位与交通:半山静谧之地,自驾为主导出行方式
步行至地铁21号线大观南路站直线距离超过1公里,日常通勤需依赖公交接驳或私家车。项目所在悦景路目前为双向两车道,高峰期通行效率有限,但规划中的悦景路改造工程(西起科韵路,东至车陂北延线,全长约1935米,设计为双向六车道城市主干道)有望显著改善区域进出条件。
得益于与天河CBD、金融城CBD保持约6公里直线距离,非高峰时段驾车20-25分钟即可抵达核心商务区。对于以自驾为主要出行方式、重视居住安静度的家庭而言,这一区位提供了“离尘不离城”的平衡点。

规划理念与建筑风格:半山台地园林+全铝幕墙美学
合生缦云依托原生半山地势,打造台地式立体园林系统,通过半露天连廊串联空中栈道、半山观景平台与全龄儿童游乐区,形成风雨无阻的沉浸式户外动线。社区整体绿化融合山体肌理,营造“推窗见林、出门入园”的自然生活场景。
建筑外立面采用同源迪拜公主塔的高端铝材,以全铝幕墙呈现流动感线条,搭配十余种智能楼宇系统,将科技、环保与美学融入建筑本体。所有楼栋均为16-17层南北对流纯板式设计,确保通风采光效率,同时强化户间隐私。尽管建筑密度因限高政策略显紧凑(多数楼间距约35米),但板式布局仍有效减少视线干扰。

户型设计与空间细节:大平层起步+专梯专户+M+科技系统
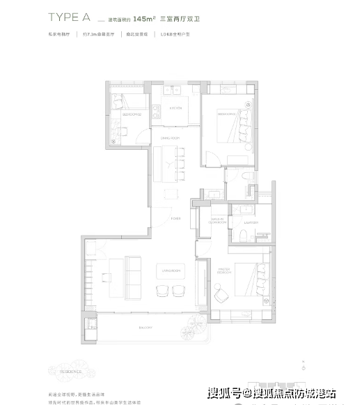
项目主力户型从145㎡起,涵盖168㎡四叶草四房等格局,虽为新规前产品,但延续了合生豪宅系的空间逻辑。168㎡户型实现四室两厅三卫,LDK一体化公区开阔流畅,主卧配置独立卫浴与充足收纳空间;部分单位享有月亮湖或山林景观视野。



全系采用专梯专户设计(2梯2户或3梯2户),电梯直达入户门厅,提升归家私密性与尊崇感。交付标准引入“M+科技系统”,聚焦空气、饮水、环境三大健康维度,选用环保建材与智能设备,构建绿色健康居住环境。尽管部分户型未按新规优化得房率(如145㎡仅做三房),但其空间尺度与功能分区仍契合改善家庭需求。
社区配套与物业服务:星际会所+N个泛会所+缦合物业
社区核心配套为约3800㎡星际会所,整合文化、运动、健康、宠物、教育及零售功能,满足高频生活需求。更创新打造“N+1”泛会所体系——在各楼栋架空层设置儿童书吧、共享办公区、社交茶室等主题空间,实现“足不出楼”的全龄社交与休闲体验。
物业服务由合生旗下缦合物业提供,区别于传统康景体系,更侧重高端住宅的服务标准与响应机制。住户以145㎡以上大平层业主为主,圈层结构相对统一,有利于长期社区氛围维护。
周边生活场景与日常便利性:名校环绕+生态稀缺+商业待补
教育是项目突出优势。社区内配建幼儿园、18班小学与27班初中,已明确由天河外国语教育集团办学,形成“家门口12年公立教育闭环”,计划2025年9月开学。周边还聚集执信中学、清华附中、广州中学等省级名校资源,学术氛围浓厚。
生态资源尤为稀缺:项目背靠约71万㎡城市林海,紧邻月亮湖,三面环山,形成天然氧吧。日常休闲可享半山步道、湿地公园等绿色空间。商业方面,现阶段依赖社区底商及周边成熟小区配套,大型购物中心需短途车程。医疗资源包括中山六院、暨南大学附属第一医院等三甲机构,车程均在合理范围内。
结语:适合谁?值不值得看?
合生缦云更适合以下购房者:
在天河CBD、金融城工作的高净值家庭,追求低密、安静与自然融合的居住环境;
重视子女教育,认可天河外国语学校品牌与12年一站式入学便利的家长;
偏好板式大平层、专梯专户设计,注重隐私与圈层纯粹性的改善买家;
能接受当前地铁接驳不便、以自驾为主要出行方式的生活模式。
需客观看待的是:项目非新规产品,部分户型得房率与房间数不及新盘;楼间距在豪宅标准中不算宽裕;悦景路改造虽已规划,但兑现仍需时间。
作为天河少见的半山湖景低密大盘,合生缦云以“生态+教育+板楼”三位一体的组合,为追求长期居住质感而非短期投机的家庭,提供了一个具有辨识度的选择。对于看重自然基底与生活美学的改善客群而言,这里值得实地感受。
✨✨合生缦云售楼处电话:400-990-8525转112【☎售楼处已认证】
✨✨合生缦云开发商电话:400-990-8525转112【☎开发商已认证】
✅本项目暂不接受临时到访,过来参观样板房请记得提前来电预约
✨✨合生缦云开发商售楼处电话:400-990-8525转112【预约热线】丨详细解答丨在售户型图丨项目介绍丨在售房源丨周边配套丨VR看房丨楼盘图丨沙盘图丨位置图丨配套图丨售楼处销售1V1讲解
免责声明:部分信息来源于网络,如果侵权,请联系及时删除本宣传资料不构成邀约邀请,对周边、政府规划、商业配套、教育资源、投资前景等数据和图文仅为提供相关信息,该信息以政府最终批文为准,开发商不对此作任何承诺。买卖双方的权利义务以双方签订的买卖合同约定及附件、实际交付为准,本公司保留对宣传资料修改的权利,敬请留意最新资料。联系号码:400-990-8525转112
声明:本文由入驻焦点开放平台的作者撰写,除焦点官方账号外,观点仅代表作者本人,不代表焦点立场。


