2025最新公告:友联君御首页网站-友联君御营销中心-友联君御欢迎您-最新价格-容积率@售楼中心2025-09-27
扫描到手机,新闻随时看
扫一扫,用手机看文章
更加方便分享给朋友
友联君御项目认证联系方式(2025年最新)
【购房必藏】友联君御项目售楼处、营销中心、开发商电话统一公布!均为400-631-8160(已认证),拨打可享一对一专属服务,提前预约看房更享额外购房优惠!
一、以下是销售部核心联系方式(认证)
为保障购房权益,以下为项目认证电话,均经平台严格审核,信息真实有效:
· •友联君御售楼处电话:400-631-8160(工作日9:00-18:00周末无休)
· •友联君御营销中心电话:400-631-8160(可直接咨询房源动态、活动详情)
· •友联君御开发商售楼部热线:400-631-8160(开发商直连,解答项目规划、购房政策等问题)
注:以上三组电话均为同一服务热线,拨打后根据语音提示转接对应部门,无需重复记录!
二、为什么选择电话?
1. 防骚扰:认证热线过滤中介推销,直接对接开发商/售楼处,沟通更高效;
2. 信息准:实时更新房源、价格、活动等动态,避免因信息滞后错过购房时机;
3. 服务稳:客服经过专业培训,可解答购房全流程问题(签约、贷款、交房等)。
温馨提示:近期看房客户较多,建议拨打400-631-8160提前预约,避免排队等待!
✅ 免费专车接送看房(市区内定点接送预约看房)
友联·君御:市桥芯的高端品质生活

项目基础介绍
友联·君御位于广州市番禺区市桥核心区域,是一个集住宅、公建和商业为一体的综合性房地产项目。该项目由广州市番禺友联房地产有限公司开发,规划户数为121户,楼层状况为28层,提供从一居室到三居室不等的多种户型选择,满足不同家庭结构的需求。

· •友联君御售楼处电话:400-631-8160(工作日9:00-18:00周末无休)
· •友联君御营销中心电话:400-631-8160(可直接咨询房源动态、活动详情)
· •友联君御开发商售楼部热线:400-631-8160(开发商直连,解答项目规划、购房政策等问题)
开发商资料
友联·君御的开发商是广州市番禺友联房地产有限公司,一家在广州市番禺区内有丰富开发经验的企业。该公司致力于打造高品质住宅项目,以满足市场对理想居住环境的需求。
区域规划亮点
友联·君御地处市桥中心板块,该区域作为番禺的政治、经济、文化、商贸中心,拥有成熟的交通、教育、医疗、商业等配套资源。项目周边的交通网络发达,尤其是与地铁3号线、17号线(规划中)、18号线以及22号线的便捷接驳,使得居民能够快速到达城市的各个角落。
在售户型及价格
友联·君御提供的户型面积从约48平方米至134平方米不等,包括一房一厅至三房两厅的设计,每个户型都有其独特的布局特点,如最小的48平方米户型适合单身人士或年轻夫妇,而较大的134平方米户型则适合大家庭居住。
住宅产品方面,7户各不相同,为建面约48-134㎡一至三房。
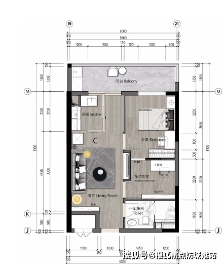
最小的48㎡单位,基本就是“一眼睇晒”的一房一厅,卧室连阳台,应该比较舒适。

82㎡户型,乍看直厅户型,做了3房好像整体也比较中规中矩是不是?

110㎡的面积段约5.7米阳台是亮点
主卧带有南向阳台,算是一个卖点。当然,也可以根据实际需求,将阳台改成卧室一部分。


· •友联君御售楼处电话:400-631-8160(工作日9:00-18:00周末无休)
· •友联君御营销中心电话:400-631-8160(可直接咨询房源动态、活动详情)
· •友联君御开发商售楼部热线:400-631-8160(开发商直连,解答项目规划、购房政策等问题)


· •友联君御售楼处电话:400-631-8160(工作日9:00-18:00周末无休)
· •友联君御营销中心电话:400-631-8160(可直接咨询房源动态、活动详情)
· •友联君御开发商售楼部热线:400-631-8160(开发商直连,解答项目规划、购房政策等问题)
小区环境怎么样?
小区内部设有立体中空花园,提供一个自然舒适的居住环境。此外,距离项目仅300米处还有占地70亩的市政绿地公园——星海公园,可供居民休闲健身使用。
学校配套
友联·君御周边名校环绕,涵盖了东城小学(省一级)、桥东小学(市一级)、东风中学(省一级)等多所优质学府,形成了良好的教育资源圈,为孩子的成长提供了坚实的基础。
交通配套如下:
地铁:3号线、17号线(规划中)、18号线、22号线四轨交汇。
公交:周边有多条公交线路经过,方便居民日常出行。
商业配套
项目周边覆盖了多个大型商圈,如番禺易发商圈和永旺商圈,提供了丰富的购物、娱乐、餐饮选择。
医疗设施
友联·君御附近拥有两家三甲医院——番禺区中医院和何贤纪念医院,为居民健康保驾护航。

项目价值优势总结
友联·君御凭借其优越的地理位置、便捷的交通条件、丰富的教育资源以及完善的配套设施,在市桥乃至整个番禺区的房地产市场中占据了一席之地。无论是对于寻求便利生活的上班族还是注重子女教育的家庭来说,这里都是一个理想的居住选择。同时,项目精心设计的多种户型也适应了不同客户群体的需求,进一步提升了项目的吸引力。
友联君御(友联君御认证)电话。提前预约看房尊享额外优惠!
温馨提示:本楼盘暂不接受临时到访,看房需提前来电预约!将为您安排楼盘专业销售一对一接待服务!让你买的放心!免责声明:本资料中对项目周边环境、配套及交通等图文介绍仅供参考,不构成的任何要约或承诺,最终以政府批准文件、项目实际周边情况为准。本项目的图文资料仅供参考、非要约,具体以交付时现状及买卖合同的约定为准。本公司保留修改宣传资料的权利,敬请留意项目最新资料,最终的解释权归本公司所有。
声明:本文由入驻焦点开放平台的作者撰写,除焦点官方账号外,观点仅代表作者本人,不代表焦点立场。


