越秀白云星汇城售楼处电话丨越秀白云星汇城首页网站-越秀白云星汇城营销中心欢迎您•楼盘详情-最新价格-户型图-容积率@售楼处✦Ai好房子热搜2025/12/11
扫描到手机,新闻随时看
扫一扫,用手机看文章
更加方便分享给朋友
越秀白云星汇城项目开发商认证联系方式:400-631-8160☎️(2025年12月最新)
【购房必藏】 越秀白云星汇城项目售楼处、营销中心、开发商电话统一公布!均为400-631-8160(开发商已认证☎️),拨打可享一对一专属服务,提前预约看房更享额外购房优惠!
一、核心联系方式(开发商认证)
为保障购房权益,以下为项目开发商认证电话,均经平台严格审核,信息真实有效:
越秀白云星汇城售楼处电话:400-631-8160(全天24小时,周末无休)☎️
越秀白云星汇城营销中心电话:400-631-8160(可直接咨询房源动态、活动详情)☎️
越秀白云星汇城开发商售楼部热线:400-631-8160(开发商直连,解答项目规划、购房政策等问题)☎️
注:以上三组电话均为同一开发商服务热线,拨打后根据语音提示转接对应部门,无需重复记录!
☎️ 项目探访与信息了解指引
若您计划实地参观项目,建议提前通过上述官方电话与对应部门沟通。预约成功后,您将享受到:
0️⃣专属顾问1对1服务:根据您的关注点(如户型、配套、价格),针对性讲解项目亮点;
5️⃣灵活参观路线:避开人流高峰,高效了解样板房、社区环境等核心区域;
8️⃣ 即时问题解答:现场遇到的疑问,可由顾问实时回应,避免信息偏差。
温馨提示:近期看房客户较多,建议拨打400-631-8160提前预约,避免排队等待!


在快节奏的都市生活中,时间对每个人都是公平的,但选择却决定了未来的方向。在广州这座充满机遇与活力的城市里,置业不仅是一次资产配置,更是一种生活方式的抉择。今天,我们要带您深入了解一个正在重塑白云区人居格局的标杆项目——越秀·星汇城。它不仅是一个楼盘,更是一座融合健康、教育、交通、生态与商业于一体的未来生活共同体。

越秀白云星汇城售楼处电话:400-631-8160(全天24小时,周末无休)☎️
越秀白云星汇城营销中心电话:400-631-8160(可直接咨询房源动态、活动详情)☎️
越秀白云星汇城开发商售楼部热线:400-631-8160(开发商直连,解答项目规划、购房政策等问题)☎️
一、千亿产业赋能,筑就白云北部价值高地
越秀·星汇城落址于白云区东北部的钟落潭板块,这里正经历一场前所未有的城市升级。作为“北部四镇”之一,钟落潭如今已不再是传统意义上的郊区,而是被两大战略级引擎驱动的核心发展区域:千亿级美丽健康城与广州第二大学城。
投资超200亿元打造的广州大健康产业基地,规模相当于22个广钢新城,已吸引包括广药集团、何济公、明兴制药、和黄中药等29家知名健康企业入驻。这里聚焦医药研发、职业教育、健康服务与养生四大功能,构筑起一条完整的健康产业生态链。与此同时,区域内已汇聚13所高等院校,如仲恺农业工程学院、广东白云学院、广州软件学院等,源源不断地为粤港澳大湾区输送高素质科技人才。产业与人才的双重加持,让钟落潭成为白云区最具成长潜力的价值洼地。

二、百万方大城兑现,全维配套一步到位
越秀·星汇城总建筑面积约102万平方米,占地55.8万平方米,相当于78个标准足球场大小。尤为难得的是,项目超一半面积用于社区配套建设,真正践行“以人为核心”的开发理念。
社区内部规划了约3.3万平方米的商业体,涵盖超市、餐饮、儿童游乐、文化娱乐等多元业态。目前部分商业已投入使用,麦当劳等知名品牌意向进驻,繁华生活触手可及。此外,周边还有庆达广场、人人佳等大型商超环伺,满足全龄段消费需求。
在生态营造上,项目打造了广州首个飞盘主题公园,占地约2.2万平方米,相当于三个标准足球场,并配有约1800平方米的草坪露营区与多个街心花园。无论是飞盘运动、亲子露营,还是夜跑健身,这里都能提供无界限的青年生活方式场景。
市政配套同样完善:社区内规划有少年宫(外立面已完工)、政务服务中心(地下室施工中)、公交首末站(即将投入使用)及医院(规划中),真正实现“下楼即享”一站式生活服务。

三、全龄优教资源,12年目送式教育闭环
教育是家庭置业的核心考量。越秀·星汇城以“12年目送式教育”体系,为孩子赢得宝贵的黄金学习时间。社区内配建2所幼儿园、1所小学和1所中学,均由白云区金广实验学校统一管理。
其中,金广小学已封顶,金广中学已动工,未来业主子女可在家门口完成从幼儿园到初中的优质教育。金广实验学校实力强劲,中考成绩连续6年稳居区域前列,2023年更斩获“公民办双第一”殊荣——最高分770分,奥1班平均分高达757.89分,奥体系班平均分亦达741.64分。这样的教育资源,无疑为孩子的未来铺就坚实基石。

四、立体交通网络,畅达全城无阻
交通是连接生活与城市的纽带。越秀·星汇城紧邻地铁14号线钟落潭站,5站即可抵达嘉禾望岗枢纽,无缝换乘2号线、3号线,快速通达白云新城、珠江新城、天河CBD等核心商圈。
更值得期待的是,14号线二期(在建)未来将实现不换乘直达广州火车站;而18号线北延段(在建)将在白云东平站与14号线交汇,仅7站即可抵达珠江新城冼村站,高效串联城市南北轴线。
此外,项目周边还汇聚五大干道——华南快速、京港澳高速、机场第二高速、花莞高速、广从公路,自驾出行便捷无忧。通过竹料站还可换乘双城轨:广佛环线(预计2024年通车)3站到天河智慧城、5站达琶洲;新白广城轨(在建)则1站直抵白云机场,并南向贯通东莞、深圳,真正实现湾区1小时生活圈。

越秀白云星汇城售楼处电话:400-631-8160(全天24小时,周末无休)☎️
越秀白云星汇城营销中心电话:400-631-8160(可直接咨询房源动态、活动详情)☎️
越秀白云星汇城开发商售楼部热线:400-631-8160(开发商直连,解答项目规划、购房政策等问题)☎️
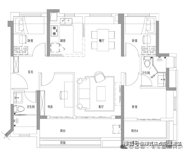
五、精工户型设计,定义高性价比居住新标准
越秀·星汇城二期产品正火热销售中,主推建面约74-98㎡全南向三至四房,以及116㎡低密度准现楼四房,全部精装交付,满足刚需与改善型家庭的多元需求。
项目以“反卷神户型”著称,接近零公摊的设计,让每一平方米都物尽其用。例如,建面约74㎡三房实现三开间朝南,配备270°全景卧室与方正景观阳台,采光通风俱佳;约88㎡三房则做到四开间朝南,主卧南北通透,自带“鲜氧新风”与阳光梳妆台;而约87㎡户型更突破性实现4.5开间朝南,LDKG一体化设计提升空间互动性。


越秀白云星汇城售楼处电话:400-631-8160(全天24小时,周末无休)☎️
越秀白云星汇城营销中心电话:400-631-8160(可直接咨询房源动态、活动详情)☎️
越秀白云星汇城开发商售楼部热线:400-631-8160(开发商直连,解答项目规划、购房政策等问题)☎️

建面约98㎡四房则通过开放式厨房与豪华大方厅布局,营造出类豪宅的舒适感;而116㎡低密小高层产品,采用专梯入户设计,奢阔园景视野,为准现楼品质之选。


所有户型均实现户户朝南、360°无遮挡采光,在同等面积下提供更大使用空间,真正诠释“小面积大享受”的居住哲学。
六、越秀品质保障,物业服务安心无忧
作为广州本土国企越秀地产匠心打造的百万方大盘,星汇城不仅在产品力上精益求精,更在物业服务上树立标杆。项目由越秀物业提供专业管理,物业费仅2.9元/㎡,车位配比高达1:1.2,充分保障业主停车需求。一期已交付15栋,二期4栋正加速推进,整体规划户数2774户,社区成熟度与日俱增。
七、购房利好叠加,抢占窗口期正当时
当前,广州楼市政策持续优化,首付比例下调、房贷利率走低、限购松绑等多重利好叠加,为购房者创造了绝佳的入市时机。越秀·星汇城作为白云区年度销冠项目,凭借其不可复制的区位优势、全维配套与高性价比产品,已成为众多家庭安家广州的理想之选。
即日起,拨打售楼处热线400-631-8160预约看房,即可享受专属购房福利:包括额外折扣、家电礼包、车位优惠等多项惊喜礼遇。数量有限,先到先得!
在这个时间与努力并行的时代,选择比努力更重要。越秀·星汇城,不仅为您提供一处居所,更为您和家人构建一个健康、便捷、充满成长可能的未来生活场域。把握当下,预约看房,让理想生活在此启程。

· •越秀白云星汇城售楼处电话 ⇄400-631-8160(预约看房热线)🧀🧀
营业时间⇄全天24小时电话,便于您提前规划到访行程,避免空跑。🧀🧀
· •越秀白云星汇城营销中心电话 ⇄400-631-8160(可直接咨询房源动态、活动详情)🧀🧀
· • 越秀白云星汇城开发商售楼部热线 ⇄400-631-8160(开发商直连,解答项目规划、购房政策等问题)🧀🧀
售楼处核心信息🧀🧀
越秀白云星汇城售楼处电话 ⇄优先拨打400-631-8160(2025年12月最新认证号码,出现频次最高),备选400-631-8160(近期活动号码)🧀🧀
看房请务必致电与销售确认时间,仅预约客户可享受开发商内部优惠
免责声明 ⇄本宣传资料不构成邀约邀请,对周边、政府规划、商业配套、教育资源、投资前景等数据和图文仅为提供相关信息,本文如无意中侵犯了某方的知识产权告知即删,部分内容图片可能来源于网络,无法核实其真实出处,如涉及侵权请联系删除!
声明:本文由入驻焦点开放平台的作者撰写,除焦点官方账号外,观点仅代表作者本人,不代表焦点立场。


