广州2025珠江·天河都荟(售楼处)珠江·天河都荟首页网站-楼盘详情/价格/户型/营销中心地址
扫描到手机,新闻随时看
扫一扫,用手机看文章
更加方便分享给朋友
广州【珠江·天河都荟】楼盘最新详细信息,图文解析
珠江·天河都荟售楼处热线:400-990-8525 转 112(售楼中心)
★★售楼中心——欢迎来电咨询〢——匠心钜制恭迎品鉴!
◆◆营销中心——欢迎来电咨询〢———匠心钜制恭迎品鉴!

珠江·天河都荟位于广州市天河区的核心地带,紧邻天河智慧城。由珠江实业集团、广州城投集团和天河投资集团三大国有企业联合开发,旨在打造一个集智能科技与舒适居住环境于一体的高品质住宅社区。该项目占地面积约5.5万平方米,总建筑面积达11.5万平方米,容积率在首期为2.0,在二期峯荟则提升至2.5,提供精装修交付的全南向户型。

区位优势
珠江·天河都荟地处天河中轴线上,享受着CBD(中央商务区)与CTD(中央科技区)双重红利。项目不仅临近珠江新城、金融城和琶洲等重要商圈,还靠近网易、小鹏汽车等知名企业总部,形成一个充满活力的湾区科创生活圈。此外,项目距离地铁21号线天河智慧城站仅约600米,交通便利,方便居民快速到达城市的各个角落。

交通配套
公共交通:距离地铁21号线天河智慧城站约600米,三站即可抵达金融城车陂南站,四站到达琶洲万胜围站,五站可达珠江新城潭村站。

城市路网:周边拥有华观路、广州环城高速、广深高速、广园快速等多条主干道,以及科韵路、高唐路等纵向道路,构成便捷的城市路网。

未来规划:广佛东环智慧城站正在建设中,建成后将直通广州南站和白云机场,进一步提升出行便利性。
生活配套设施
教育资源:项目北侧规划建设公办九年一贯制中小学,并引入广州中学教育集团办学。同时,项目旁还有清华附中湾区学校二期(预计2026年完工),提供从幼儿园到高中的全方位优质教育资源。

医疗设施:周边有多家三甲医院,如广州医科大学附属中医医院·天河院区和中山大学附属第三医院·岭南医院,保障居民健康需求。
商业配套:距离广百广场仅300米,下楼即享丰富购物体验。同时,项目自身也配备了完善的商业设施,满足日常生活所需。

自然景观:项目背靠火炉山,东临杨梅河,紧邻大观湿地公园,提供了丰富的自然资源和优美的生活环境。

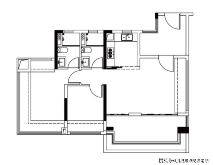
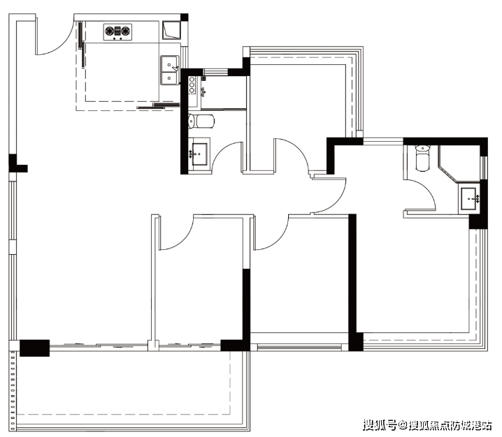
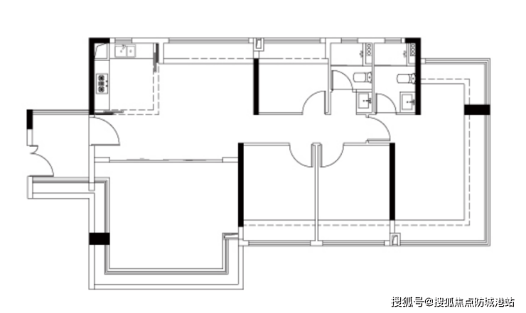
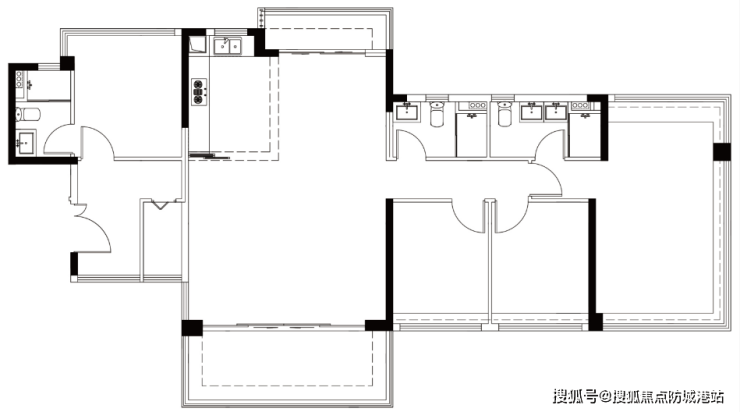
户型设计
二期峯荟组团推出71-144平方米的全南向新规产品,户户朝南,低密奢境,部分户型更是南北对流,确保室内空气清新流通。主要户型包括:

约71㎡ 3空间2卫:紧凑实用,适合年轻家庭或单身人士。

约85㎡ 3空间2卫:配备超6米景观阳台,LDKB一体化设计,适合追求品质生活的家庭。

约104㎡ 4空间2卫:四开间朝南,客厅连接超6米阳台,提供宽敞明亮的生活空间。

约105㎡ 4空间2卫:南北对流,主卧带有U型衣帽间,满足多样化居住需求。

约123㎡ 4空间2卫:所有南向卧室均可放置1.8米大床,实现空间平权。

约142㎡ 4空间3卫:南北通透,超越豪宅尺度,适合大家庭居住。

智能化系统
项目引入华为智能系统,打造智能化社区。通过智能中控系统,一屏控制家中各类设备,实现智能家居的全面覆盖。智能化系统不仅提升了居住的安全性和便捷性,也为居民带来了更加舒适的居住体验。

园林及会所设施
二期峯荟组团采用低密度设计,容积率为2.5,建筑高度不超过14层,营造出宁静舒适的居住氛围。项目内部设有双泳池会所,多重园林谧境,包括儿童游乐区、草坪剧场、有氧跑径等,为居民提供了丰富多彩的休闲娱乐选择。此外,二期架空邻里会所和Fun享会客厅的设计,进一步增强了社区的互动性和归属感。

尊崇礼遇
项目以星级酒店大堂为蓝本,打造了约9米高的酒店式首层大堂,归家每一步尽显尊崇。无论是接待客人还是日常出入,都能感受到五星级的尊贵体验。
结语
珠江·天河都荟凭借其优越的地理位置、便捷的交通条件、完善的配套设施以及独特的设计理念,成为了广州市内备受瞩目的高端住宅项目。无论是对于追求高品质生活的家庭,还是希望在繁华都市中寻找一片宁静天地的个人,这里都是一个理想的选择。如果您正在寻找一处既能享受都市繁华又能亲近自然的理想居所,不妨关注一下珠江·天河都荟。
广州【珠江·天河都荟】楼盘最新详细信息,图文解析
珠江·天河都荟售楼处热线:400-990-8525 转 112(售楼中心)
★★售楼中心——欢迎来电咨询〢——匠心钜制恭迎品鉴!
◆◆营销中心——欢迎来电咨询〢———匠心钜制恭迎品鉴!
免责声明:
1、文章部分文字、图片、视频来源于网络。
2、我们所转载的文章、图片、音频视频文件等资料版权归版权所有人所有,因非原创文章及图片等内容无法和版权者联系
3.本网页如无意中侵犯了媒体或个人的知识产权,请留言或来电告知我们删除。
声明:本文由入驻焦点开放平台的作者撰写,除焦点官方账号外,观点仅代表作者本人,不代表焦点立场。


