首页热搜:保利天奕售楼处电话→保利天奕Ai热搜24小时电话→保利天奕2025最新房价→楼盘百科详情→售楼处更新发布@保利天奕营销中心地址
扫描到手机,新闻随时看
扫一扫,用手机看文章
更加方便分享给朋友
♎保利天奕♎
♎保利天奕售楼处电话: 400-996-2582【已认证】
♎♬保利天奕꧁ 售楼处电话:400-996-2582【☎☎售楼处电话已认】꧂✨✽✽✽✽
♎♬保利天奕꧁ 营销中心电话:400-996-2582【☎☎售楼处电话已认证】꧂✨✽✽✽✽
♎♬保利天奕꧁ 开发商电话:400-996-2582【☎☎开发商电话已认证】꧂✨✽✽✽✽
🦋保利天奕本项目暂不接受临时到访,过来参观样板房请记得提前来电预约!
🦋保利天奕为您安排楼盘现场销售全程接待并讲解,给您更贴心的看房体验!
✨✨保利天奕Vip贵宾置业=欢迎来电预约尊享内部折扣=匠心钜制恭迎品鉴温馨提醒:我们楼盘售楼部400电话没有设置任何所谓的“分机号”,拨打前请仔细甄别,注意保护个人隐私!谨防上当!
前言
在追求高品质生活的今天,一个住宅项目是否能够满足我们对舒适、便捷与尊贵的多重需求成为了关键。保利琶洲南 | 天奕,作为保利地产在高端人居领域的又一力作,不仅以其卓越的开发实力和前瞻性的战略眼光吸引了众多目光,更通过其独特的地理位置、丰富的配套设施以及精心设计的居住空间,为购房者提供了一个理想的生活选择。
一:项目简介
保利琶洲南 | 天奕坐落于广州市海珠区琶洲板块的核心地段,紧邻保利世界贸易中心南侧。这里不仅是广州人工智能与数字经济试验区的核心区域,也是琶洲CBD发展的重要组成部分。随着区域的不断升级和发展,该项目凭借其国际化豪宅标准的设计理念,从规划设计到建筑施工,每一个环节都精益求精,严格把控品质,旨在为购房者打造经得起时间考验的品质住宅。
二:项目特点
卓越的品牌背景
保利地产作为房地产行业的领军者,凭借多年积累的丰富经验和深厚的品牌底蕴,将国际化的豪宅标准融入到保利琶洲南 | 天奕的开发全程中。从项目的选址、规划到施工,每一个细节都体现了保利对品质的极致追求。
黄金区位优势

项目傲踞琶洲板块核心地段,这里是广州人工智能与数字经济试验区的核心区域,也是琶洲 CBD 发展的重要组成部分。随着区域的不断发展,未来升值空间巨大,成为高净值人群抢占城芯资源的理想之选。
板块发展潜力
琶洲片区近年来发展迅猛,正经历着一场华丽的升级蝶变。作为粤港澳大湾区未来的创新高地,这里吸引了众多知名企业与高端人才汇聚。保利琶洲南 | 天奕顺应区域发展大势,以国际化的视野和定位,打造全新一代国际雅奢住宅。
三:丰富配套
立体交通网络
保利琶洲南 | 天奕拥有立体交通网络,步行约900米即可到达地铁8号线琶洲站或赤沙站,无论是通勤还是出行游玩,都能快速通达全城。同时,琶洲南至会展中心大桥已正式通车,自驾可通过会展东路和新滘东路便捷连接广州各大核心区域。
商业配套繁华
项目坐拥琶洲南商业综合体、南丰汇全球展贸中心及六元素商超等多个商业配套,日常购物、休闲娱乐需求均可轻松满足。此外,周边规划中的高端商业区也将进一步提升片区的商业氛围,丰富业主的生活选择。
生态宜居典范
保利琶洲南 | 天奕秉持生态宜居理念,采用低密度开发,容积率仅2.5,绿地率高达35%。社区内绿树成荫、景观优美,为业主营造了一个静谧舒适的居住环境。同时,项目注重与周边自然环境的融合,让业主在繁忙的都市生活中,也能享受大自然的宁静与美好。
成熟城芯配套
除了商业与生态配套,保利琶洲南 | 天奕周边的教育、医疗等配套也十分成熟。周边规划有幼儿园及九年制公立学校,同时还有国际私立学校(12K),能够满足不同家庭的教育需求。广东财经大学的存在,更为片区增添了浓厚的学术氛围。在医疗方面,中山大学附属第一医院(琶洲分院)、广州医科大学附属第一医院等多家三甲医院环伺,为居民提供高质量的医疗服务,全方位保障业主的生活品质。
四:区域介绍
保利琶洲南 | 天奕所在的琶洲片区,是广州人工智能与数字经济试验区的核心区域,也是琶洲 CBD 发展的重要组成部分。这里不仅拥有便捷的交通条件和成熟的配套设施,还享有得天独厚的生态环境。特别是随着琶洲南至会展中心大桥的通车,该区域的交通网络更加完善,未来发展潜力不可限量。
五:户型鉴定
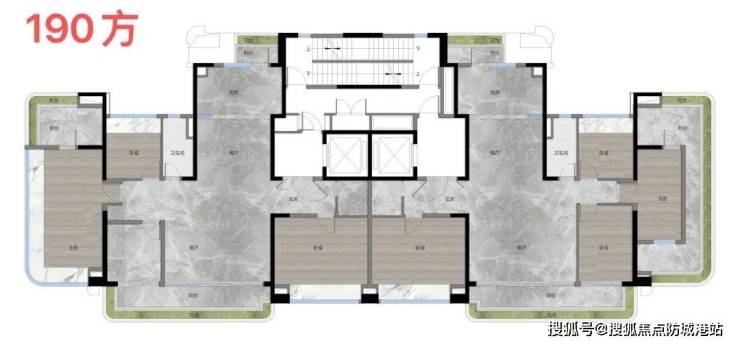
保利琶洲南 | 天奕在户型设计上充分注重功能性和舒适度。项目首推02地块,涵盖120、140、190平方米三种四房户型,并配备南北双阳台,确保通风采光俱佳。所有户型均采用专梯入户设计,兼顾私密性与尊贵感。板楼结构使得户型方正,空间利用率高达100%,提升了室内空间的实用性。无论是三口之家还是多代同堂,都能在这里找到舒适的居住空间,满足多样化的居住需求。
六:优点综述
地理位置优越
保利琶洲南 | 天奕位于琶洲板块核心地段,紧邻保利世界贸易中心南侧,占据城市发展的黄金脉络。这里不仅是广州人工智能与数字经济试验区的核心区域,也是琶洲 CBD 发展的重要组成部分。
配套设施完善
项目周边拥有丰富的商业设施、便捷的交通网络以及成熟的教育、医疗等配套,生活非常便利。特别是项目的商业街和周边的大型购物中心,能够满足各种购物需求。
居住体验舒适
保利琶洲南 | 天奕在户型设计上充分考虑了功能性和舒适度,采用了专梯入户设计和板楼结构,确保了居住的私密性和空间利用效率。同时,项目内部配备了恒温泳池、健身房等设施,满足业主健身休闲需求,助力健康生活。
总之,保利琶洲南 | 天奕凭借其卓越的地理位置、完善的配套设施以及高品质的建筑设计,成为了海珠区乃至广州市不可多得的优质住宅项目。对于那些追求高品质生活的购房者来说,这里无疑是一个理想的选择。让我们共同期待,在这片充满希望的土地上,开启一段全新的都市生活篇章。
♎保利天奕♎
♎保利天奕售楼处电话: 400-996-2582【已认证】
♎♬保利天奕꧁ 售楼处电话:400-996-2582【☎☎售楼处电话已认】꧂✨✽✽✽✽
♎♬保利天奕꧁ 营销中心电话:400-996-2582【☎☎售楼处电话已认证】꧂✨✽✽✽✽
♎♬保利天奕꧁ 开发商电话:400-996-2582【☎☎开发商电话已认证】꧂✨✽✽✽✽
🦋保利天奕本项目暂不接受临时到访,过来参观样板房请记得提前来电预约!
🦋保利天奕为您安排楼盘现场销售全程接待并讲解,给您更贴心的看房体验!
✨✨保利天奕Vip贵宾置业=欢迎来电预约尊享内部折扣=匠心钜制恭迎品鉴温馨提醒:我们楼盘售楼部400电话没有设置任何所谓的“分机号”,拨打前请仔细甄别,注意保护个人隐私!谨防上当!
声明:本文由入驻焦点开放平台的作者撰写,除焦点官方账号外,观点仅代表作者本人,不代表焦点立场。


