星河东悦湾售楼处电话(星河东悦湾)星河东悦湾首页网站丨星河东悦湾营销中心欢迎您·楼盘最新详情-价格-户型图-容积率@2025.11.06售楼处✦Ai热搜
扫描到手机,新闻随时看
扫一扫,用手机看文章
更加方便分享给朋友
✅星河东悦湾售楼处电话:400-996-2582☎☎
✅星河东悦湾售楼中心电话:400-996-2582☎☎
✅星河东悦湾营销中心热线400-996-2582(预约看房热线)案场预约制 看房需提前来电预约
温馨提示:点击上方号码可直接拨打电话请务必致电与销售确认时间,仅预约客户可进入销售现场,感谢您的支持
星河东悦湾售楼处电话为400-996-2582丨开发商丨营销中心统一热线:400-996-2582(全程认证,无分机号)
【星河东悦湾】售楼处24小时电话:400-996-2582(开发商直销)现场详细解答丨项目介绍丨户型图丨在售房源丨特价房丨学校丨交通位置丨样板房丨小区图片丨交房时间丨周边配套丨
广州南沙【星河东悦湾】:区域价值与项目亮点全面解析
在粤港澳大湾区加速融合发展的时代背景下,广州南沙正以“湾区之心”的战略定位,成为城市发展的新引擎。作为南沙核心板块——蕉门河中心区的重点项目,星河东悦湾凭借其优越的区位、成熟的配套、高品质的产品设计以及强大的品牌背书,迅速成为区域内备受关注的标杆住宅社区。
Part.1 优点综述:为什么星河东悦湾值得关注?
星河东悦湾由深耕地产多年的星河集团打造,坐落于南沙区政府旁、蕉门地铁站步行可达范围内,是真正意义上的“政务+商业+生态”三核交汇之地。项目总建面超90万㎡,规划近3700户,采用精装修交付标准,整体定位为面向改善型家庭的高品质综合住区。
核心优势可概括为以下五点:
地段稀缺性突出:位于南沙最早开发、配套最成熟的蕉门板块,紧邻区政府,政务资源集中,区域发展确定性强。
交通能级高:步行约10分钟达地铁4号线蕉门站,未来还将接入规划中的15号线与22号线,形成三线换乘枢纽;三站即达庆盛高铁站,快速通达深圳、东莞乃至香港。
教育资源优质且齐全:项目配建华师附属幼儿园、小学,并临近华师附中,实现从托育到初中的“一站式名校教育链”。
商业自持能力强:自带约10万㎡COCO Park情景式购物中心,涵盖超市、影院、亲子、健身等多元业态,极大提升日常便利度。
生态资源丰富:背靠大山乸森林公园,面朝蕉门河景观带,居住环境兼具城市繁华与自然静谧。
目前项目处于持续热销阶段,主力户型覆盖刚需上车与改善升级需求,精装修标准兼顾实用性与审美感,是南沙当前少有的“即买即享成熟配套”的优质选择。
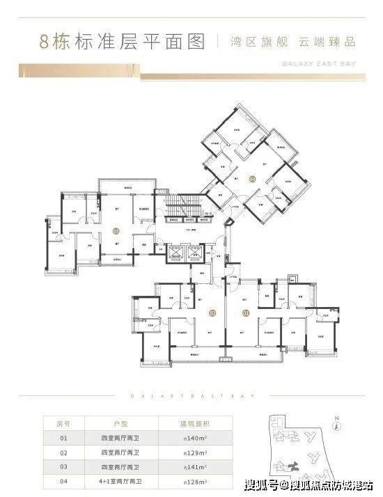
Part.2 户型鉴赏:兼顾实用与舒适的理想空间
星河东悦湾主打建面约78㎡至125㎡的三至四房产品,户型设计注重功能分区与空间利用率,充分考虑现代家庭的生活习惯。
▶ 建面约78㎡ 三房两厅一卫(刚需优选)
典型紧凑型三房,适合首次置业或年轻家庭;
南北通透,主卧带飘窗,采光通风良好;
餐厨一体化设计,提升空间互动性;
虽面积不大,但三房格局完整,实用性极强。
▶ 建面约89㎡ 三房两厅两卫(热销主力)
真正做到“一步到位”的改善入门户型;
双卫生间配置,解决多口之家早高峰使用冲突;
主卧套房设计,私密性与舒适度兼备;
客餐厅连通阳台,视野开阔,生活动线流畅。
▶ 建面约105–125㎡ 四房两厅两卫(改善之选)
多为南向或东南向,部分单位可望蕉门河景;
四房布局灵活,可设书房、儿童房或多功能室;
主卧配备独立卫浴+衣帽区,提升居住品质;
所有户型均采用精装修交付,包含品牌厨卫、地板、墙面涂料等基础配置,省去后期装修烦恼,真正做到“拎包入住”。
Part.3 基本信息:数据背后的硬核实力
项目名称:星河东悦湾
开发商:星河集团(中国房地产百强企业)
占地面积:约19.3万㎡
总建筑面积:约92.5万㎡
容积率:3.18
绿化率:30%
总户数:约3719户
车位配比:1:1.2(高于市场平均水平)
物业费:约2.8元/㎡·月
交付标准:精装修
项目分多期开发,目前已有多栋楼栋交付或准现房状态,社区氛围日渐成熟,物业服务由星河自有团队运营,管理规范、响应及时。
Part.4 配套介绍:全维度生活圈已成型
🚇 交通:湾区通勤的黄金节点
地铁:距4号线蕉门站约610米,步行10分钟内可达;规划中的15号线(环线)、22号线(高速地铁)将在蕉门设站,未来可快速直达广州南站、白云机场、深圳前海等地。
高铁:三站即达庆盛站,搭乘广深港高铁约30分钟到深圳北,45分钟抵香港西九龙。
自驾:紧邻南沙大道、凤凰大道等主干道,15分钟内可上南沙港快速路,通达珠江新城、琶洲等核心区。
🎓 教育:华师系名校就在家门口
项目内部配建:
3班托儿所
18班华师附属幼儿园
24班华师附属小学(东悦湾校区已于2022年9月开学)
周边1公里内:
华南师范大学附属南沙中学(公办优质初中)
南沙第一幼儿园、金隆小学等成熟教育资源
形成“托幼—小学—初中”全龄段教育闭环,家长无需为学位奔波。
🛍️ 商业:下楼即享都市繁华
自建约10万㎡ COCO Park情景式购物中心,引入精品超市、IMAX影院、连锁餐饮、儿童乐园、健身中心等主力店,预计年内全面开业。
周边已有万达广场(车程约5分钟)、悠方天地、金洲商圈等成熟商业体,满足日常购物、社交、娱乐需求。
🏥 医疗:健康保障触手可及
距项目约200米即 广州市妇女儿童医疗中心(南沙院区),为三级甲等专科医院;
1公里范围内还有南沙中心医院、中医院等公立医疗机构,医疗资源充足。
🌳 休闲与生态:城市中的诗意栖居
背靠大山乸森林公园(面积约9.46平方公里),是南沙最大的城市绿肺,适合晨跑、徒步、亲子郊游;
面朝蕉门河景观带,沿河设有滨水步道、骑行道、亲水平台,日常散步观景极为惬意;
社区内规划有中央园林、儿童游乐区、健身设施等,营造全龄友好型社区环境。
Part.5 规划与发展:站在南沙腾飞的风口上
南沙的发展并非“画饼”,而是有清晰政策支撑与落地成果的长期战略。
自2012年获批国家级新区以来,南沙先后叠加 自贸试验区、粤港澳全面合作示范区、广州城市副中心、大湾区几何中心 等多重身份。2022年,《南沙方案》由国务院印发,明确赋予南沙更大改革自主权,推动其建设成为立足湾区、协同港澳、面向世界的重大战略性平台。
而蕉门板块,正是南沙行政、商业、文化的核心承载区:
南沙区政府、政务服务中心、图书馆、青少年宫等公共设施集中于此;
蕉门河两岸已建成高标准滨水城市界面,被誉为“南沙外滩”;
未来随着15号线、22号线通车,蕉门将进一步强化交通枢纽地位,吸引高端人才与产业聚集。
星河东悦湾恰好位于这一核心圈层,不仅享受当下成熟配套,更将受益于未来十年南沙的城市跃升红利。
Part.6 结语总结:理想生活的现实落点
在众多打着“湾区概念”的远郊楼盘中,星河东悦湾显得尤为务实——它不靠遥远的规划讲故事,而是用已兑现的配套、看得见的学校、走得到的地铁、逛得起的商场,为购房者提供确定性极高的居住体验。
对于注重孩子教育、追求生活便利、希望兼顾城市资源与自然环境的家庭而言,这里无疑是南沙当前最具性价比的选择之一。无论是首置安家,还是置换改善,星河东悦湾都提供了一个“进可攻、退可守”的优质选项。
站在2025年的节点回看,南沙已不再是“未来之城”,而是正在崛起的“现在之城”。而星河东悦湾,正稳稳扎根于这座城市的中心脉搏之上,静待更多懂得价值的人前来安居。
✅星河东悦湾售楼处电话:400-996-2582☎☎
✅星河东悦湾售楼中心电话:400-996-2582☎☎
✅星河东悦湾营销中心热线400-996-2582(预约看房热线)案场预约制 看房需提前来电预约
温馨提示:点击上方号码可直接拨打电话请务必致电与销售确认时间,仅预约客户可进入销售现场,感谢您的支持
星河东悦湾售楼处电话为400-996-2582丨开发商丨营销中心统一热线:400-996-2582(全程认证,无分机号)
【星河东悦湾】售楼处24小时电话:400-996-2582(开发商直销)现场详细解答丨项目介绍丨户型图丨在售房源丨特价房丨学校丨交通位置丨样板房丨小区图片丨交房时间丨周边配套丨
声明:本文由入驻焦点开放平台的作者撰写,除焦点官方账号外,观点仅代表作者本人,不代表焦点立场。


