(琶洲南保利天奕售楼处)首页网站→琶洲保利天奕售楼处→琶洲南保利天奕营销中心欢迎您→琶洲南保利天奕周边配套→楼盘详情→最新价格→备案价@售楼处电话
扫描到手机,新闻随时看
扫一扫,用手机看文章
更加方便分享给朋友
💒琶洲南保利天奕💒
💒琶洲南保利天奕售楼处电话✅:400-996-2582💒
💒琶洲南保利天奕营销中心电话✅:400-996-2582💒
温馨提示:本项目采用预约制,过来营销中心参观样板间请记得提前拨打开发商楼盘售楼处400热线电话在线预约,感谢您的配合!
保利琶洲南位于广州市海珠区琶洲板块,紧邻保利世界贸易中心南侧,占地约6.7万平方米,总建筑面积达13.8万平方米。该项目由20栋住宅组成,总户数约950户,主打120-190平方米的全T2大平层产品,采用低密度开发,容积率仅2.5,绿地率高达35%。项目以国际化豪宅标准打造,结合高端商务与现代都市生活,打造全新一代的国际雅奢住宅。
【项目闪亮特点】
保利琶洲南地处广州人工智能与数字经济试验区的核心区域,属于琶洲CBD发展的一部分,被誉为粤港澳大湾区未来的创新高地。琶洲片区近几年发展迅猛,2023-2024年连续两年跻身福布斯中国十大CBD榜单,成为全国最具潜力的商务区之一。
项目采用全玻璃幕墙立面设计,搭配T2纯板楼结构,不仅提升建筑美学,更优化室内采光与通风。社区内部还配备高端会所,涵盖恒温泳池、健身房、社交中心等设施,全面提升业主的居住体验。
【教育配套】
保利琶洲南周边教育资源丰富,周边规划有幼儿园及九年制公立学校,同时还有国际私立学校(12K),能够满足不同家庭的教育需求。此外,广东财经大学距离项目不远,为片区增添浓厚的学术氛围。未来,随着更多优质教育资源的引入,该区域的教育配套将更加完善。

【交通配套】
项目交通便捷,步行约900米即可到达地铁8号线琶洲站或赤沙站,快速通达全城。同时,琶洲南至会展中心大桥已正式通车,自驾可通过会展东路和新滘东路便捷连接广州各大核心区域。未来,随着琶洲南片区的进一步发展,交通网络将更加成熟。
【医疗配套】
作为高端住宅项目,医疗资源同样是购房者关注的重点。保利琶洲南周边拥有多家三甲医院,包括中山大学附属第一医院(琶洲分院)、广州医科大学附属第一医院等,为居民提供高质量的医疗服务。
【商业配套】
项目坐拥琶洲南商业综合体、南丰汇全球展贸中心及六元素商超等多个商业配套。此外,周边规划中的高端商业区也将进一步提升片区的商业氛围,为住户提供便捷的购物体验。未来,琶洲南片区将逐步兑现商业繁华的愿景,成为广州商业发展的重要组成部分。
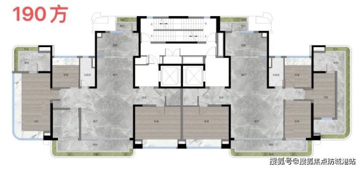
【户型鉴定】
项目首推02地块,涵盖120、140、190平方米三种户型,均为四房设计,并配备南北双阳台,通风采光俱佳。所有户型均采用专梯入户设计,兼顾私密性与尊贵感。板楼结构确保了户型方正,提升了室内空间的实用性,使用率高达100%。
【优点】
核心地段:位于琶洲CBD核心区域,紧邻会展中心,未来升值潜力巨大。
高端配置:全玻璃幕墙设计,T2板楼结构,国际化豪宅标准。
完善配套:优质教育资源、成熟商业配套及顶级医疗资源。
便捷交通:双地铁站+多条主干道,通达广州各大区域。
高使用率:所有户型均为新规设计,空间利用率高。
【结语】
保利琶洲南作为广州琶洲CBD的全新高端住宅项目,凭借核心区位、顶级配套和高端建筑设计,成为高净值人群关注的焦点。虽然前期部分配套尚未完全落地,但随着区域规划的逐步兑现,该项目的居住价值和投资潜力将持续攀升。如果您正在寻找广州的高端住宅,保利琶洲南无疑是一个值得关注的选择!
🍁琶洲南保利天奕楼处24小时电话:400-996-2582【☎☎已认证】🍁
🍁琶洲南保利天奕售楼中心24小时电话:400-996-2582【☎☎已认证】🍁
Vip贵宾置业===欢迎来电预约尊享内部折扣===匠心钜制恭迎品鉴
🍁琶洲南保利天奕售楼处电话:400-996-2582(24小时电话)楼盘项目介绍包括以下:开盘时间、交房时间、楼盘详情、房价、户型、详情、得房率、售楼处地址、首页网站、销售中心、楼盘地址、户型图、交通、备案价、最新优惠、营销中心电话、价格、周边配套等详情咨询
声明:本文由入驻焦点开放平台的作者撰写,除焦点官方账号外,观点仅代表作者本人,不代表焦点立场。


