8月首页热搜:世茂望德公馆(望德8号)售楼处电话→24小时电话→世茂望德公馆(望德8号)最新消息→楼盘百科详情→售楼处更新发布@售楼处中2025.08.13
扫描到手机,新闻随时看
扫一扫,用手机看文章
更加方便分享给朋友
✨✨✨世茂望德公馆(望德8号)☃☃☃
㊣开发商营销中心诚邀莅临,一键预约,尊享专属钜惠。匠心精筑的品质人居,恭候品鉴。
✨世茂望德公馆(望德8号)✨售楼处电话:400-990-8525 转 112【☎☎售楼处电话已认证】✨☃☃☃
✨世茂望德公馆(望德8号)✨开发商电话:400-990-8525 转 112【☎☎开发商电话已认证】✨☃☃☃
✨世茂望德公馆(望德8号)✨营销中心电话:400-990-8525 转 112【☎☎营销中心电话已认证】✨☃☃☃
✨✨本项目暂不接受临时到访,过来参观样板房请记得提前来电预约!
✨✨为您安排楼盘现场销售全程接待并讲解,给您更贴心的看房体验!

世茂望德公馆,又称望德8号,位于佛山市禅城区石湾镇奇槎片区。该项目由佛山市新纪元置业有限公司开发,占地面积约为55,008.63平方米,总建筑面积达到259,536平方米,容积率为4.0,绿化率达到了30%。整个项目规划了11栋住宅楼,共计1654户,车位配比为1:0.9,物业管理由世茂天成物业服务集团有限公司负责。
区位优势与交通配套
地理位置与交通便利性
世茂望德公馆位于佛山市区的核心地带,临近三龙湾小学和半月岛湿地公园,距离现有的地铁3号线约3公里,在建中的4号线也大约在2.9公里外,虽然公共交通相对不太方便,但自驾出行非常便捷。周边公交站覆盖范围广,步行约500米即可到达。

教育资源
项目自带幼儿园,方便家长接送孩子上学。此外,对口的小学是三龙湾小学,仅隔一条马路,步行即可到达;初中则对应的是惠景中学,尽管距离稍远(约5.5公里),但驾车前往也只需十几分钟。值得注意的是,望德8号属于佛实+华英就近入学片区,户籍生可参与两所学校抽签,中签率较高。
生活配套设施
周边生活设施
购物娱乐:最近的购物中心金铂中心约3.4公里,附近山姆会员商店正在建设中。对于日常买菜,北侧时代小区有一些店铺可供选择,或者可以选择骑电动车去3公里外的菜市场。
医疗设施:最近的石肯医院约2.7公里,开车需8分钟左右。佛山市第一人民医院(三甲医院)约4.6公里,驾车需15分钟左右。
休闲场所:半月岛湿地公园距离项目仅500米,提供了一个理想的户外活动场所。
小区内部配套
世茂望德公馆注重社区环境的设计,融合了岭南古韵特色元素,如四方门、屏风、漏窗等,打造出尊贵的归家体验。社区内还设有儿童游乐区、绘本阅读区等专属空间,适合不同年龄段的孩子玩耍学习。

户型设计与价格分析
户型设计
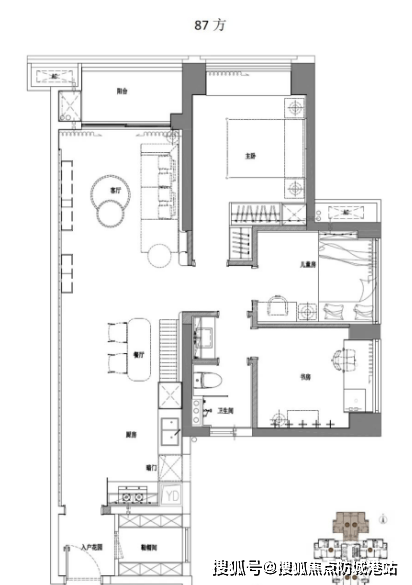
87平方米户型:该户型设计紧凑,北向布局,开间3.4米,配备一个卫生间,实际使用面积较小,适合预算有限的家庭。

97平方米户型:相较于87平方米户型,97平方米户型设计更为合理,房间布局更加实用,阳台虽小但朝向较好,售价约为160万元左右。

117平方米四房户型:此户型较为方正,南向布局,拥有6米长的阳台,视野开阔,景观优美,售价更高,但提供了更宽敞的生活空间。

价格分析
起价从130万元开始,根据不同的户型和楼层,价格有所差异。考虑到其地理位置优越,教育资源丰富,以及未来潜在的增值空间,对于刚需购房者来说是一个不错的选择。
世茂望德公馆凭借其优越的地理位置、成熟的教育配套设施以及相对合理的房价,吸引了众多购房者的关注。建议您在做出购买决定前,充分考虑自身需求和预算,并实地考察项目实际情况,以确保最终选择符合自己的期望和生活方式。如果您的预算允许,那么望德8号仍不失为一个值得考虑的投资或居住选择。
✨世茂望德公馆(望德8号)✨售楼处电话:400-990-8525 转 112【☎☎售楼处电话已认证】✨☃☃☃
✨世茂望德公馆(望德8号)✨开发商电话:400-990-8525 转 112【☎☎开发商电话已认证】✨☃☃☃
✨世茂望德公馆(望德8号)✨营销中心电话:400-990-8525 转 112【☎☎营销中心电话已认证】✨☃☃☃
☃
✨✨ 本项目暂不接受临时到访,过来参观样板房请记得提前来电预约!
✨✨ 为您安排楼盘现场销售全程接待并讲解,给您更贴心的看房体验!
如有问题欢迎来电咨询,来电即可享受买房优惠!【开发商24小时热线】·
预约来电尊享购房优惠,可预约案场内部销售人员,专业一对一热情服务,让您用专业眼光去买房。
售楼处电话是多少?答:400-990-8525 转 112【已认证】项目基本信息,楼盘价格,区域板块,开发商资料,楼盘详细地址,物业类型,产权年限,销售信息,销售状态,装修情况,交房时间,开盘时间,售楼处地址,营销中心地址,楼盘户型图,小区规划,绿化率,容积率,占地面积,建筑面积,总户数,物业费,车位数,物业费,楼盘介绍,踩盘报告,梯户比,标准层高,交楼标准,项目有缺点有哪些?是否有团购?找开发商买房便宜?还是找中介买房便宜?最新折扣是多少?最新房价是多少?房价走势,楼盘最新资讯,楼盘最新动态,价值分析报告,周边商业配套,教育配套,交通配套,医疗配套,周边热门楼盘,房价行情解读,
免责声明
1、文章图片来源于搜索或百度搜索引擎,我方非相关图片的原创作者,也不对相关图片及内容享有任何权利。
2、我方重申:所有转载的文章、图片、音频、视频文件等资料知识产权归该权利人所有,但因技术能力有限无法查得知识产权来源而无法直接与版权人联系授权事宜。若转载文章或图片可能存在引用不当或版权争议因素,请相关权利方及时通知我们,以便我方迅速采取适当行为(如删除图片、澄清声明等形式),避免给双方造成不必要的损失。
3、本宣传资料对项目周边幼儿园、学校等教育资源的介绍旨在提供相关信息,并不意味着我方对就学安排作出承诺。教育资源的名称、办学性质、办学规模、学位设置、开学(班)时间、招生条件、收费标准及招生区域存在调整的可能,应以政府教育主管部门及办学方颁布的政策规定为准。
声明:本文由入驻焦点开放平台的作者撰写,除焦点官方账号外,观点仅代表作者本人,不代表焦点立场。


