首页网站_天麟府·瑧林售楼处电话:400-6398-010售楼中心_最新详情
扫描到手机,新闻随时看
扫一扫,用手机看文章
更加方便分享给朋友
天麟府·瑧林位于房价最新信息/优缺点电话4006398010/好不好-详细信息具有升值潜力吗?折扣政策团购消息,在售户型配套交通地铁距离水电物业费。
广州【天麟府·瑧林】楼盘优惠,预约看房
营销中心热线:400-6398-010
基础信息:
🌟所属区域:天河区 天河公园板块(天府路)
🌟住宅套数:222席
🌟主推产品:珍稀113-172㎡高区现房三至四房单位
🌟开发商:英广集团*合景泰富
🌟类别:平层住宅
🌟在售价格:15万/㎡
🌟交付时间:即买即住(现楼)
🌟其它:容积率4.4/绿化率39%/车位配比1:2
🌟全屋智能:配备智能灯光控制系统、VRV中央空调、新风循环系统、家居安防系统及健康人居检测全维搭建。
01商业配套
项目地处广州四大 CBD 商圈:珠江新城/天河北/琶洲/金融城商圈的中心交汇处——天河公园板块,享四大商圈资源。
项目 5 公里范围内分布有华润万家、太古汇、太阳新天地、天环广场、天汇广场、万菱汇等广州大型高端商场,让您轻松畅享醇熟繁 华配套,最大限度地满足您的日常生活需求。

02交通
项目拥有“五维立体交通路网“——“3 条主干道+2 条快速路+3 线地铁交 汇枢纽+机场快线+公交”,出行方式多样 且十分便捷
1) “3 条主干道”:项目南侧的黄埔大道、北侧的中山大道和科韵路,只需约 10 分钟的车程即可达到周边任意一个 CBD 商圈, 无论是上班还是周末休闲娱乐,都能满足您的出行需求。

自驾:小区停车场至华南快速干线入口的距离大约是1.9公里,10分钟左右能上高速,非常方便。
2) “2 条快速路”:华南快速干线往南可达中山市、珠海市、澳门;广园快速路,号称广州最长城市快速干道。通过这两条交通干道, 半小时内可接驳珠粤港澳大湾区等重点城市,实力构建大湾区生活经济圈。
3) “3 线地铁交汇枢纽”:项目附近就是全亚洲最大的地铁枢纽——天河公园站。该站全部建成后将是地铁 21 号线、13 号线二期 以及 11 号线的换乘站,目前已接通 21 号线。
瑧林到地铁站的距离为200米左右,正常步速在3分钟内。上图是号称“亚洲最大”的地铁站--天河公园站,工作日17:30分,宽敞的站厅明亮有活力,正在等候下班归来的人们。

4) 公交:至于公交出行方面,本项目周边 700 米内共有天府路、员村山顶、天河公园等 9 个公车站点,分布 50 多条公交线路, 可轻松达到广州各个市区。
5) “机场高速”:从本项目出发沿华南快速干线再转入机场高速,约 40 分钟即可直通白云机场,快速接驳珠三角、全国重点城市 及世界各地。
03教育
●幼儿园:瑧林小区内部没有幼儿园,附近有华港幼儿园、天府幼儿园、熹园幼儿园、天晖幼儿园等公立幼儿园。公立幼儿园在满足配套小区人户一致业主子女后,剩余学位以摇号或排队的方式给非本小区业主子女入读。无法入读公立幼儿园的业主,可以选择附近的私立园区,如英国皇家幼儿园等。
小学:值得注意的是,和前几期介绍的几个小区不同,瑧林对口小学不是天府路小学,而是黄埔大道南面的华融小学。从瑧林到华融小学,需要从天桥跨越黄埔大道,步行600米,10分钟内可到。
●中学:对口学校是广州市第一一三中学(金融城校区),学校创办于1978年,现有五山、东方两个校区。学校先后获得国家环境教育示范基地、广东省级学校、广东省绿色学校、斯巴鲁生态文明学校、广东省健康促进学校、广东省档案综合管理特级单位、广东省现代教育技术实验学校、广东省校本培训示范学校等荣誉称号。
瑧林西门到113中学(金融城校区)约900米,需穿越黄埔大道,对于初中生来说,自行上学放学难度不大。
注:以瑧林和公园之间的道路为界,道路以南住宅对口学校是华融小学和113中金融城校区,道路以北的住宅对应学校是天府路小学和113中东方校区。
04环境
如此地段,天麟府•瑧林自然不会辜负,从园林、室内、到外立面,都诚邀了多位大师执笔。
日本当代景观设计界最杰出的设计师之一——枯山水大师枡野俊明,在天麟府•瑧林实现了中国广州枯山水园林首作。
这位日本古刹建功寺的主持,同时也是多摩美术大学教授、当代枯山水的代表人物,被称为国宝级大师。
而为了天麟府•瑧林,他不惜千里迢迢,往返横滨与羊城近10次,只为达到最理想的效果。
同时,天麟府•瑧林和枡野俊明还邀请了日本皇室御用、被日本评为“非物质文化遗产”的园艺师——植藤造园的佐野晋一先生,负责天麟府•瑧林的园林施工。
比如,从600多棵同类树种中,精选出来了一颗罗汉松。
而栽种位置和朝向,还提前了花一天一夜的时间,来观察完整的日出日落。
国际美学室内设计大师——Desmond Luk (陆剑麟),曾主笔香港天价公寓天汇等多个顶级豪宅项目。
作为天麟府•瑧林的设计顾问,其从室内设计、人居系统到内设配套均安装全球豪宅标准呈现,极致简约,又兼具美学。
丨瑧林172㎡板房实景图
建筑外立面也不例外,广东省博物馆、W酒店等多项著名作品的设计师——William Tam(谭伟霖),以超70%玻璃幕墙,带来更开阔的景观。
光与影的相互促和,似是轮廓分明,又似是与背景天空融为一体。
70万方的四季浓荫,和城市CBD的浮光掠影,于此被逐帧收藏。
●户型1:172平方四房楼王户型

格局:4房2厅,总建筑面积约172m²,景观阳台东向,生活阳台和主卧套间、次卧套间为南向飘窗。
上图是楼王的客餐厅,客厅最里面是一面全景落地玻璃窗,旁边的门口出去就是阳台。落地窗的采光和景观都非常棒,弥补了偏置阳台的缺陷,而且节省了半个阳台的面(房)积(款)。
在阳台放眼望去,全是天河公园的美景。前方视线没有任何阻挡,园景尽收眼底,景观超级无敌。
主卧是L型全景飘窗的设计,东面窗对着天河公园;南面窗,可以看到琶洲的标志性建筑,通风、采光、景观都是无敌级的存在。
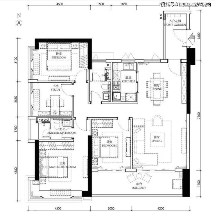
●户型2:142平方豪华四房
格局:4房2厅,总建筑面积约142m²,景观东台东向。
点评:本户型带入门花园,可以当生活阳台使用,而且和玄关相连,归家仪式倍增;“景观阳台--客餐厅--生活阳台”连成一线,东西朝向,早晒晚晒,采光指标爆表。
但也会造成夏天室内比较热,通风条件也比不上南北对流的户型;主卧是带衣帽间和独卫的套间,私密性好,L字型的飘窗,夹角刚好是东南,窗户打开正好让夏季风吹进来。
书房和客厅共用阳台,直面无敌的天河公园景观,赏心悦目;两个次卧飘窗开在西面,容易西晒,是本户型的遗憾。
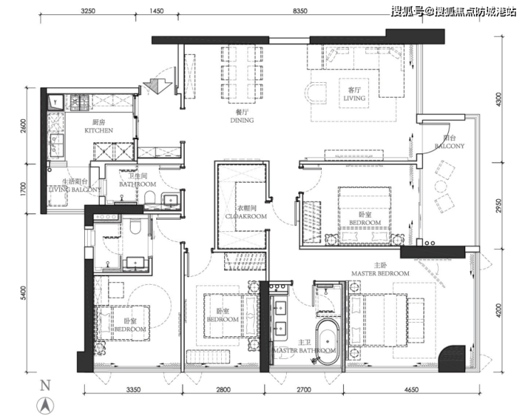
●户型3:136平方轻奢四房
格局:4房2厅,总建筑面积约136m²,阳台南向。
广州【天麟府·瑧林】楼盘优惠,预约看房
营销中心热线:400-6398-010
声明:本文由入驻焦点开放平台的作者撰写,除焦点官方账号外,观点仅代表作者本人,不代表焦点立场。


